Maison T3 avec double garage sur 2718m2 terrain - Camarès
Camarès 12360
0
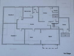
Située à Camarès dans un village avec des commodités, cette petite maison T3 de 147m2 des années 60 se situe sur une belle parcelle en pente de 2 718 m2. Le premier étage, d'une surface de 63 m2 habitables, comprend une salle à manger, un salon, une cuisine, 2 chambres, salle d'eau et wc. Au rez-de-chaussée, vous trouverez un double garage de 58m2 avec buanderie, atelier et 2 pièces de 26 m2, idéal pour le stockage ou un futur aménagement complémentaire. Une pompe à chaleur a été installée en 2019 pour faire baisser la consommation énergétique, les combles et le garage sont isolés. Une maison avec du potentiel, parfait pour un projet de résidence principale ou secondaire. Cette annonce vous est proposée par BENEZECH Valérie - EI - NoRSAC: 481 646 396, Enregistré à Greffe du tribunal de commerce de RODEZ - Annonce rédigée et publiée par un Agent Mandataire -
62.8 m²
1 513 €
21 m²
2718 m²
3
2
1
1
Sud
Nord
2
Oui
Oui
Consommations énergétiques
Logement économe
162
Logement énergivore (kWhEP/m2/an)
Émissions de gaz à effet de serre
Faible émission de GES
5
Forte émission de GES(kgeqCO2/m2/an)
Contact Valérie BENEZECH
Contacter gratuitement à l'aide du formulaire ci-dessous.