Maison T3 Duplex Vernaison limite Charly Secteur calme e
Vernaison 69390
0
Honoraires à la charge du vendeur.
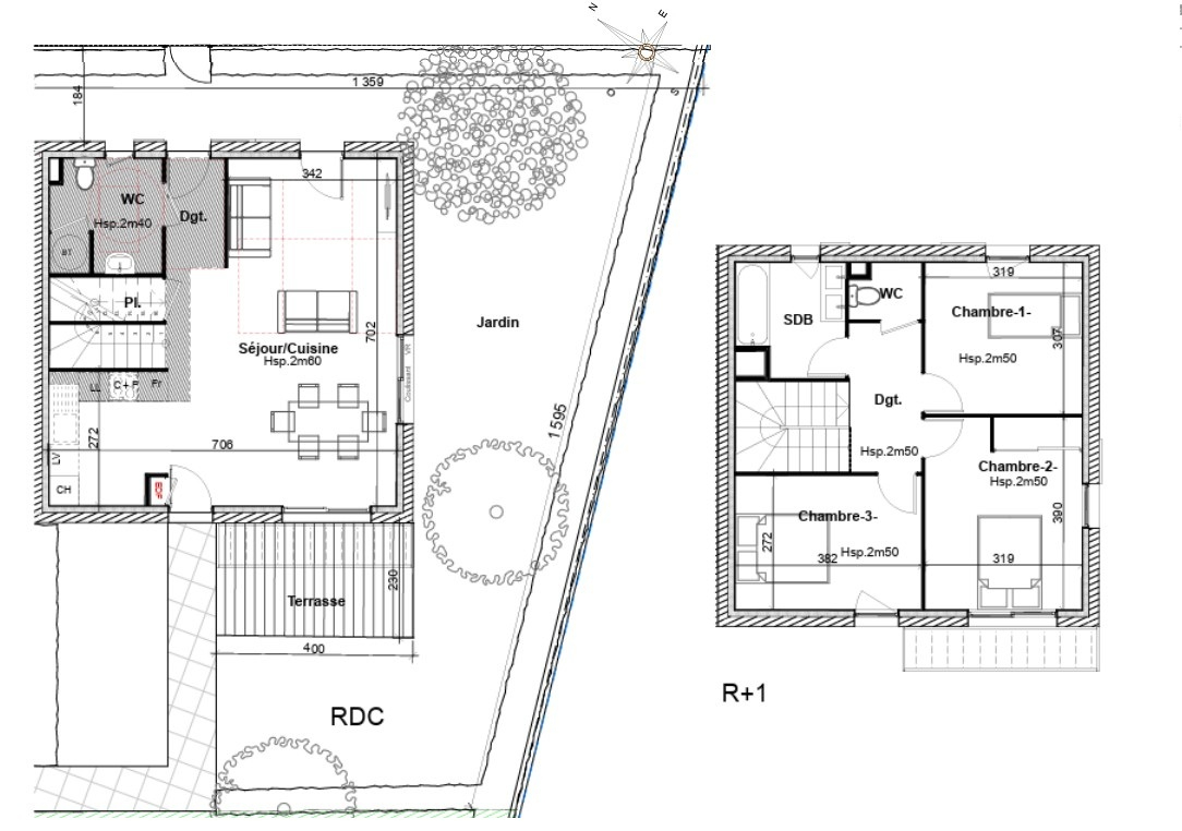
NEYRET VERNAISON vous propose à la vente dans une maison divisée en deux lots, sans charges ce T3 en duplex situé sur la commune de Vernaison, en limite de Charly, dans un environnement calme et verdoyant. La maison offre une belle pièce de vie de 44 m2 avec cuisine ouverte, lumineuse, donnant accès à deux terrasses, idéales pour profiter des extérieurs. À l'étage :
Deux chambres, dont une climatisée, avec dressing et accès à une terrasse de 15 m2
Salle d'eau avec WC
À l'extérieur, vous bénéficierez d'un terrain privatif arboré d'environ 300 m2, rare sur le secteur. Maison rénovée en 2014 et régulièrement entretenue, avec travaux récents :
Toiture refaite en 2024
Électricité et terrasses refaites en 2025
Portail électrique installé en 2025
Isolation des combles réalisée en 2022
Bien idéal pour une résidence principale, offrant le confort d'une maison sans les contraintes de copropriété. Pour tout renseignement complémentaire,contacter Arnaud REYNARD au 06.80.04.18.28 ou votre agence au 04.78.56.78.99.
Les informations sur les risques auxquels ce bien est exposé sont disponibles sur le site Géorisques : www.georisques.gouv.fr
85 m²
4 412 €
21 m²
3
2
1
2
1970
Sud
Est
2
2
Oui
Oui
Oui
Consommations énergétiques
Logement économe
204
Logement énergivore (kWhEP/m2/an)
Émissions de gaz à effet de serre
Faible émission de GES
6
Forte émission de GES(kgeqCO2/m2/an)
Contact Neyret Immobilier Vernaison
Contacter gratuitement à l'aide du formulaire ci-dessous.