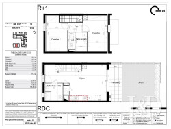
A Sauvian, entre Béziers et la Méditerranée, dans un quartier écologique et soucieux de préserver son environnement (production énergie verte, corridor écologique, jardin pédagogique) et à 10 minutes à pied du centre-ville, je vous propose un appartement T3 en duplex offrant tous les atouts d'une maison : accès par l'extérieur, jardin privatif, logement traversant, pièce à vivre équipée d'une climatisation réversible, 2 chambres et une salle de bain à l'étage et une buanderie au RDC. La cuisine est aménagée et équipée. Volets roulants motorisés. Stationnements privatifs. Résidence verte à taille humaine, organisée autour d'un îlot paysager, entièrement sécurisée avec contrôle d'accès par badge électromagnétique et visiophone. Me contacter pour plus d'informations, d'autres opportunités sont disponibles sur cette résidence. Carole Ducoin-EI, votre consultante partenaire RSAC de Montpellier N° 832 505 465.
Honoraires à la charge du vendeur. Dans une copropriété de 28 lots. Quote-part moyenne du budget prévisionnel 1 700 /an. Aucune procédure n'est en cours. DPE vierge. Les informations sur les risques auxquels ce bien est exposé sont disponibles sur le site Géorisques : georisques.gouv.fr. Ce bien vous est proposé par un agent commercial (Entreprise individuelle).