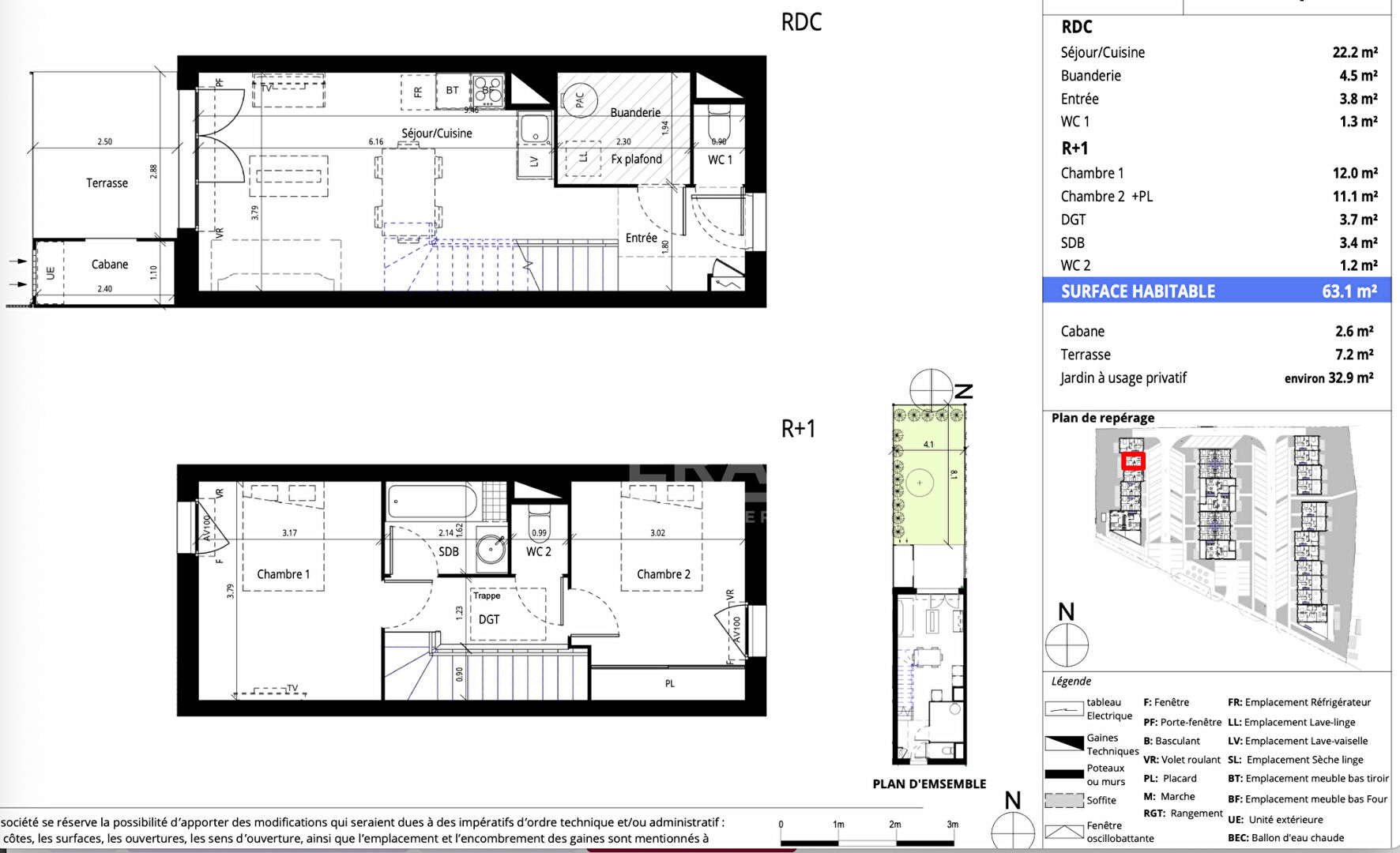
Idéalement situé à Messanges dans un charmant village, cette maison de 88 m² offre un cadre de vie unique où tout se fait à pied : commerces, école, marché, etc. Vous serez séduit par un séjour lumineux avec cuisine ouverte, pensé comme un véritable espace de vie convivial, parfait pour des moments partagés. Trois grandes chambres accueillent confortablement famille ou invités. L'ensemble s'ouvre sur une terrasse et un jardin, idéal pour profiter du soleil landais et prolonger les belles journées en extérieur. Cette adresse conjugue confort moderne et charme local. Côté pratique, vous disposerez de places de stationnement et d'un local vélo. Venez découvrir cette belle opportunité ! Frais de notaire réduits. Les informations sur les risques auxquels ce bien est exposé sont disponibles sur le site Géorisques : www.georisques.gouv.fr Copropriété de 128 lots - dont 38 lots habitation.(Pas de procédure en cours).