Maison T4 avec garage - Domaine de l'Hermione - Programme n
La Baule-Escoublac 44500
0
Honoraires à la charge du vendeur.
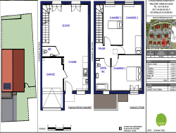
Située à seulement 700 mètres des commerces et de la gare de Pornichet, cette maison neuve de type 4 en cours de construction se trouve dans le Domaine de l'Hermione, au coeur du quartier du Guézy à La Baule. Au rez-de-chaussée, vous profiterez d'un séjour avec cuisine donnant sur le jardin, ainsi que d'un garage attenant. L'étage accueille trois chambres et une salle de bain, offrant un cadre idéal pour une vie de famille. Bénéficiez des frais de notaire réduits pour ce bien neuf répondant aux normes énergétiques RT 2012 La livraison est prévue pour le 1er trimestre 2026. Les Résidences de l'Hermione vous proposent d'autres maisons en VEFA à partir de 366 000EUR Pour plus d'informations ou pour organiser une visite, contactez-nous dès aujourd'hui !
88.3 m²
4 281 €
45 m²
219 m²
4
3
1
2
2026
Ouest
Nord
1
Oui
Contact Séverine AYACHE
Contacter gratuitement à l'aide du formulaire ci-dessous.