MAISON T4 DE 76 m² AVEC TERRASSE COUVERTE AU COEUR D'OLONZAC
Olonzac 34210
0
Honoraires à la charge du vendeur.
EXCLUSIVITÉ - 'Ne vous fiez pas aux apparences... découvrez des volumes et des atouts inattendus ! »
Maison de 76 m² est une opportunité rare pour ceux qui recherchent de beaux volumes et un extérieur privé.
Que vous soyez primo-accédant, à la recherche d'une résidence secondaire spacieuse ou investisseur, ce bien possède des atouts uniques.
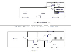
La Terrasse couverte de 17 m² : Véritable pièce de vie supplémentaire à l'étage, elle vous permet de profiter de l'extérieur en toute intimité, à l'abri du soleil ou du vent.
Volumes de vie généreux : Un séjour de 22 m² et une cuisine aménagée de 14 m² en enfilade, offrant un espace convivial et fonctionnel.
Espace Nuit : À l'étage, découvrez 3 chambres lumineuses. Un grenier pour du stockage.
Côté Investisseur : Un rendement performant, dernier loyer pratiqué : 550 /mois.
Un potentiel à valoriser : La façade nécessite un rafraîchissement et l'intérieur attend une mise au goût du jour. C'est l'occasion idéale de créer un intérieur moderne tout en augmentant immédiatement la valeur patrimoniale de votre acquisition.
Olonzac, en tant que 'capitale' du Minervois, attire énormément pour son marché hebdomadaire, séduit par sa situation exceptionnelle, à deux pas des berges du Canal du Midi et du lac de Jouarres avec ses activités nautiques. Le village, traversé par le chemin de Saint-Jacques-de-Compostelle, abrite également un musée archéologique et s'épanouit dans une plaine fertile plantée de vignes, véritable centre économique et vivant du Minervois.
?? ENGLISH VERSION Spacious 76 sqm Home with 17 sqm Covered Terrace High Potential Yield! Don't judge a book by its cover! Behind this facade lies a spacious 76 sqm village house. The Highlight: A private 17 sqm covered terrace, perfect for outdoor living all year round. The Space: 22 sqm living room, 14 sqm kitchen, and 3 bedrooms upstairs. Investment: Previous rent was 550/month, offering an excellent gross yield. Located in Olonzac, the vibrant 'capital' of Minervois, famous for its Tuesday market and proximity to the Canal du Midi and Jouarres Lake. Some renovation work is required, allowing you to add significant value to this authentic home.
Honoraires à la charge du vendeur. Classe énergie D, Classe climat B Montant estimé des dépenses annuelles d'énergie pour un usage standard : entre 863.00 et 1169.00 sur les années 2021, 2022 et 2023 (abonnements compris). Les informations sur les risques auxquels ce bien est exposé sont disponibles sur le site Géorisques : georisques.gouv.fr.
Votre conseiller WEELODGE - Réseau national de mandataires immobiliers : Elvire BEDEL Agent commercial (Entreprise individuelle)
Maison ancienne
76 m²
980 €
22 m²
4
3
1
1 (séparé)
Sud
Est
1
Consommations énergétiques
Logement économe
234
Logement énergivore (kWhEP/m2/an)
Émissions de gaz à effet de serre
Faible émission de GES
8
Forte émission de GES(kgeqCO2/m2/an)
Contact Elvire BEDEL
Contacter gratuitement à l'aide du formulaire ci-dessous.