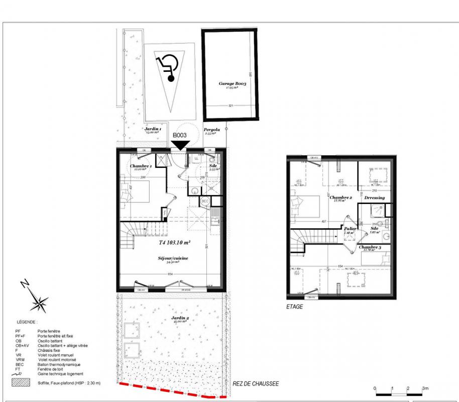
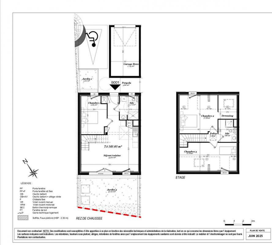
Astero Bretagne vous propose en exclusivité à la vente cette magnifique maison neuve de plain pied de type T4 d'une surface de 100m2 habitable située sur la commune de la Vicomté sur Rance proche de toutes commodités.
Cette maison individuelle à ossature bois vous apportera un confort thermique mais également phonique.
Elle se compose de la façon suivante : une cuisine aménagée ouverte sur un grand salon-séjour avec accès direct à une terrasse donnant sur un jardin clos, trois chambres dont une avec dressing et salle d'eau privative, une buanderie, une salle de bain avec WC, un WC séparé. Le bien dispose également de places de parking sous un carport.
Bien présenté par Agences de France par délégation.
Agences de France ? SIREN : 899413603 ? Titulaire de la carte T : 29012021000000009 non habilité à percevoir des fonds
Les informations sur les risques auxquels ce bien est exposé sont disponibles sur le site Géorisques : www. georisques. gouv. fr
100 m²
3 819 €
546 m²
4
3
1
2
2
2025
Américaine
Sud
Nord
Consommations énergétiques
Logement économe
72
Logement énergivore (kWhEP/m2/an)
Émissions de gaz à effet de serre
Faible émission de GES
2
Forte émission de GES(kgeqCO2/m2/an)
Contact Frédéric PIAUD
Contacter gratuitement à l'aide du formulaire ci-dessous.