Maison T5 de plain pied sur le secteur du Mas de Senes
La Garde 83130
0
Honoraires à la charge du vendeur.
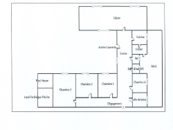
L'agence Sud à la Garde vous propose en exclusivité une maison de 130 m2 dt type T5 sur le secteur trés recherché du mas des Senes. Cette batisse de 1970 de plain pied au caractére atypique est édifiée sur un terrain d'une surface de 649 m2. De type californienne elle est composée de la manière suivante : .Un salon séjour de 40 m2 (avec cheminée) .Une cuisine ouverte équipée et aménagée .Un cellier Un long couloir désservant : .1 wc séparé .2 Salle d'eau .4 chambres Quelques travaux de rénovation et mise au goût seront à prévoir. La maison est dotée d'une installation de panneaux solaires qui permettent l'auto suffisance et la revente d'électricité à engie. Pour l'extérieur une terrasse exposée plein sud (travertain), et une piscine de 8x4 traditionnelle ainsi qu'un pool house. Un roof top permettant de profiter de belles soirées d'été. Pour le stationnement un carport pouvant abriter 2 véhicules. Diagnostics de performances énergétiques : 245 kwatts/h/m2 - GES : 7kg/co2/m2 Estimation des coûts annuels d'énergie : entre 1630 EUR et 2280 EUR/an. Honoraires à charge vendeur.Prix affiché honoraires inclus.
Villa
130 m²
3 923 €
38 m²
649 m²
5
4
Sud
Oui
Consommations énergétiques
Logement économe
245
Logement énergivore (kWhEP/m2/an)
Émissions de gaz à effet de serre
Faible émission de GES
7
Forte émission de GES(kgeqCO2/m2/an)
Contact de Coccola
Contacter gratuitement à l'aide du formulaire ci-dessous.