Maison T6 : 129 m2 habitables de plain-pied La Roche sur F
La-Roche-sur-Foron 74800
0
Honoraires à la charge du vendeur.
En exclusivité, sur la jolie commune de La Roche sur Foron, venez découvrir cette maison récente de 2018, sur 129 m2 habitables, composée de 6 pièces, 4 chambres et 2 salles de bains. Édifiée sur un terrain de 649 m2, dans un lotissement extrêmement calme à moins de 3 minutes du centre-ville et 10 minutes à vélo de la gare ! Cette maison de plain-pied, possède de grands atouts dont : une belle luminosité grâce à son exposition plein sud et ses nombreuses ouvertures, la vaste pièce de vie, ses deux salles de bain, une grande buanderie et garage accessible depuis l'intérieur.
Aucun rafraichissement à prévoir et la serénité d'avoir la garantie décénnale du goupe RIZZO CONSTRUCTION !
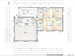
Une entrée avec toilette visiteur et rangement désert la vaste pièce de vie de 45 m2 baignée de lumière, avec cuisine tout équipée. Vous saurez apprécier le silence et la quiétude de l'endroit avec une belle vue sur les montagnes environnantes.
Quant à l'espace nuit, celui-ci est composé d'une buanderie de 7,90 m2, d'une première salle de bain de 6,32 m2, de 4 chambres de près de 12 m2 dont une suite parentale avec sa salle de douche, dressing et un accès jardin. Un second toilette complète cet espace. Vous disposez pour finir, d'un garage fermé de 21 m2 accessible depuis l'intérieur, ainsi qu'un emplacement devant la maison pour stationner 3 voitures.
Pour le découvrir en LIVE ou pour tout renseignement complémentaire sur ce bien, contactez-moi ! - Annonce rédigée et publiée par un Agent Mandataire -