Maison T6 + garage + remise sur terrain de 500m2 env 13013 M
Marseille 13013
0
Honoraires à la charge du vendeur.
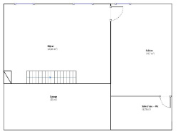
*** Uniquement chez MSG Immo 13 *** Entre St Mitre et Château Gombert -- Bâtisse des années 1900 sur 500m2 - T6 d'env 126m2 + garage 25m2 + remise de 30m2 env. Mitoyenne d'un côté. Expo Sud. Double vitrage bois. Chauff gaz de ville. Tout à l'égout. Composée d'un séjour, cuisine et sde avec wc en bas + étage avec 5 chambres, sdb et wc. Plan en photos ! Zone pavillonaire très calme, sécurisée par portail automatique (prévoir charges d'env 300EUR/ an). Rarissime.
126 m²
3 008 €
26 m²
500 m²
6
5
1
1
2
1900
Sud
3
2
Oui (14 lots)
Consommations énergétiques
Logement économe
193
Logement énergivore (kWhEP/m2/an)
Émissions de gaz à effet de serre
Faible émission de GES
42
Forte émission de GES(kgeqCO2/m2/an)
Contact Msg Immo 13
Contacter gratuitement à l'aide du formulaire ci-dessous.