Maison Individuelle de 150m² avec Jardin et parking au centre de Taluyers
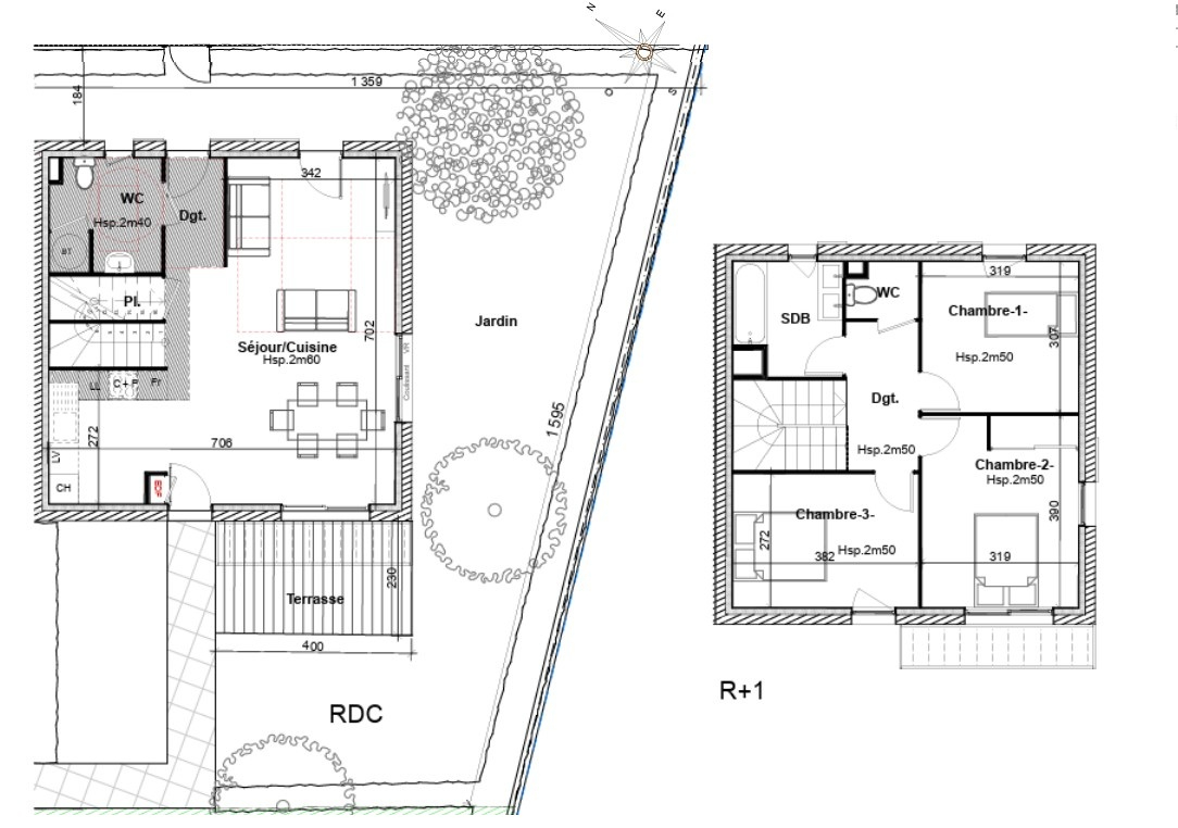
Découvrez cette maison individuelle pleine de potentiel, nichée dans un cadre paisible et ensoleillé. Avec ses 150 m² de surface habitable, cette demeure de deux étages vous offre un espace de vie généreux et une opportunité unique de créer un foyer sur mesure.
Imaginez-vous dans un séjour spacieux de 52 m², baigné de lumière, parfait pour des moments conviviaux en famille ou entre amis. Vous recherchez un grand coin cuisine, une belle cheminée, une grande pièce de vie pleine de charme, une maison avec du bois et de la pierre ? Cette maison pleine de cachet est faite pour vous !
Ce bien dispose de quatre chambres, une salle de bains et une salle d'eau, ainsi que des toilettes à chaque niveau. Vous aurez aussi la possibilité de créer une magnifique suite parentale.
La maison bénéficie de 2 places de stationnement dans la cour. Un joli jardin complète ce bien. Située dans un quartier bien desservi, au centre de Taluyers, à proximité de nombreuses commodités : crèche, maternelle, école collège, médecins, pharmacie, commerces, bibliothèque, infrastructures sportives... tout se fait à pieds !
Ne manquez pas cette opportunité de transformer cette spacieuse maison avec jardin en un véritable havre de paix, au centre du village prisé de Taluyers !
Contactez-nous dès aujourd'hui pour une visite et laissez-vous séduire par son potentiel !
Honoraires à la charge du vendeur. Classe énergie E, Classe climat B Montant estimé des dépenses annuelles d'énergie pour un usage standard : entre 3704.00 et 5013.00 sur les années 2021, 2022 et 2023 (abonnements compris). Les informations sur les risques auxquels ce bien est exposé sont disponibles sur le site Géorisques : georisques.gouv.fr.