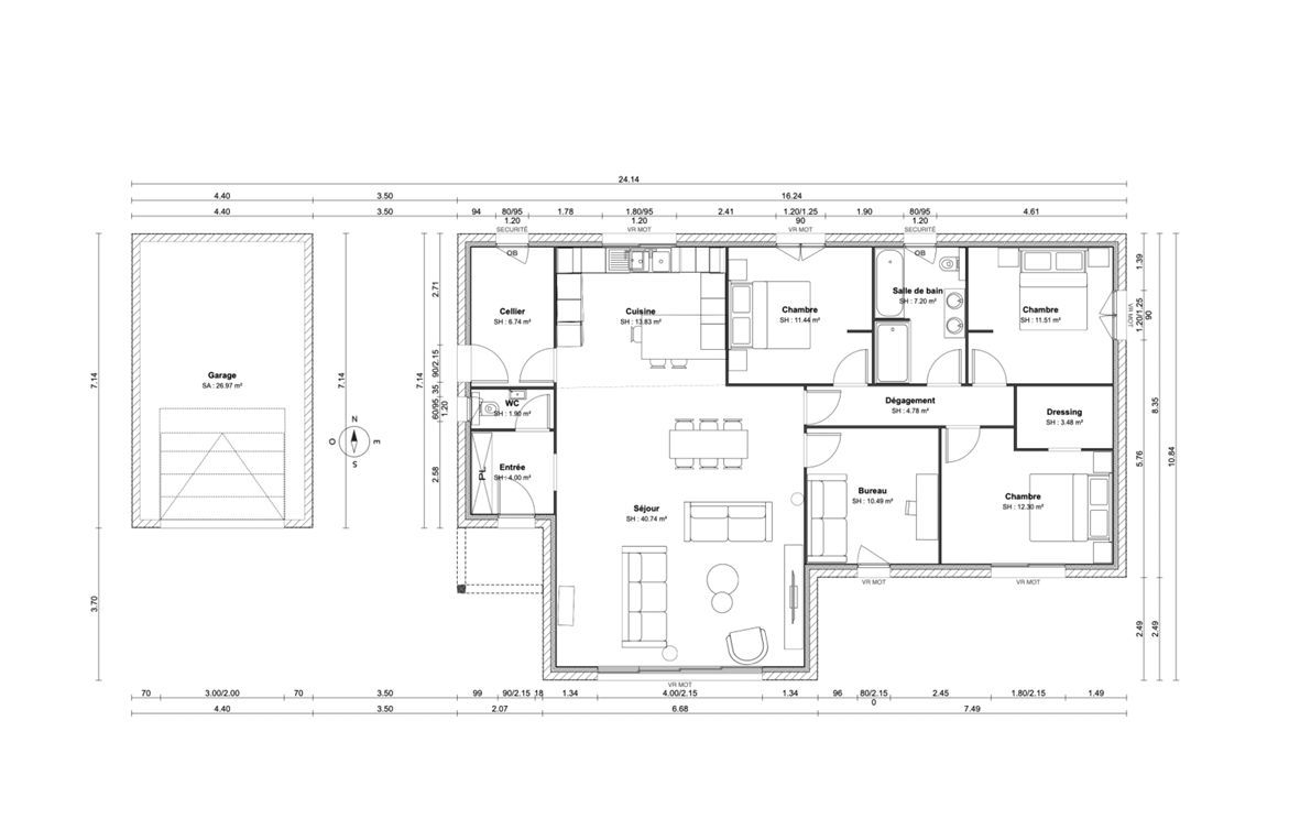
Haut de Idron - Villa traditionnelle 158 m2. Au RDC : 1 grand salon avec cheminée, 1 chambre et sa salle d'eau, 1 cuisine équipée et son cellier attenant.
A l'étage : 3 chambres, 1 bureau-mezzanine,1 SDB et 1 WC. Un demi sous-sol enterré de 50 m2 environ avec cave à vin. Un abri pour 2 voitures et une bonne de recharge pour voiture electrique.
Belle piscine sur une parcelle arborée de 1000 m2 . Vue Pyrénées de l'étage. Arrêt bus et commerces à proximité. Ecole Ste Ursule à 3 minutes en vélo.
CLASSE ENERGIE : C 135 kWh/m2/an.CLASSE CLIMAT : C 29 kgCO2/m2/an. Montant estimé des dépenses annuelles d'énergie pour un usage standard : entre 1380 euro et 1900 euro / an. Date de référence des prix de l'énergie utilisés pour établir cette estimation : 2021 Les informations sur les risques auxquels ce bien est exposé sont disponibles sur le site Géorisques : http://www.georisques.gouv.fr
Cet ensemble vous est proposé au prix de 550000 EUR, honoraires charge Vendeur.
Noël Pierrat Agent local : noel.pierrat@cotefrance.immo (Français, English, Deutsch) Tél. 06 12 01 00 57
Côté France Réseau Franco-Belge-International d'agences et de conseillers.La présente annonce immobilière a été rédigée sous la responsabilité éditoriale de Noël Pierrat, Agent commercial indépendant en immobilier de la SARL Côté France (sans détention de fonds), l'agent commercial immatriculé au RSAC de PAU sous le numéro 488788613, titulaire de la carte de démarchage immobilier pour le compte de la société SARL Côté France.
Achat vente location à vendre investissement location acheter cotefranceimmo.fr
Annonce proposée par un agent commercial.
Cette annonce vous est proposée par Pierrat Noel - EI - NoRSAC: 488 788 613, Enregistré à Greffe du tribunal de commerce de PAU Côté France Immobilier - Réseau Immobilier Franco Belge International - Des conseillers du Nord au Sud de la France et 4 agences à votre service www.cotefranceimmo.fr - Annonce rédigée et publiée par un Agent Mandataire -
158 m²
3 323 €
1000 m²
6
4
1
1
2
1991
Séparée
Sud
Consommations énergétiques
Logement économe
135
Logement énergivore (kWhEP/m2/an)
Émissions de gaz à effet de serre
Faible émission de GES
29
Forte émission de GES(kgeqCO2/m2/an)
Contact I@D France - Noël PIERRAT
Contacter gratuitement à l'aide du formulaire ci-dessous.