Honoraires à la charge de l'acquéreur (Prix hors honoraires : 360000 euros).
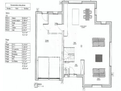
Quartier Sevran, Belle Maison traditionnelle Construit sur 1 étages, de 120 M2 avec 385 M2 de terrain, récemment rénover isolation extérieur refait en 2023. abri de jardin à l'avant. chambre parentale, 1 petite chambre enfant ou bureau. salle à manger 35 m2 donne sur cuisine ouverte. laisse tout les meubles et grande tv canapé et coin salon marocain cuisine équipé lave vaisselle frigo américain four et micro ondes plaque neuf 2025, 1 grande salle de bain douche à l italienne double vasque, toilette séparé buanderie lave linge, escalier refait à neuf a l étage 1 grande chambre avec hauteur 5 m de hauteur et double fenêtres donnant sur le jardin. 1 grande chambre avec grenier aménagé donnant sur rue. 1 grande salle de bain avec baignoire toilette et lavabo. grande terrasse devant pouvant mettre 2 voitures. 1 cuisine d'été équipé dans le jardin barbecue dispo 2 dépendance à l arrière. 1 de 30 m2 et l'autre de 20 m2 pour matériel de jardin, gare de Sevran Beaudottes à 5 min à pied carrefour à 7 min à pied gare de Sevran Livry à 10 min à pied bientôt nouvelle ligne de train le grand paris, près Commerce et écoles
Classe énergie D, Classe climat D Montant estimé des dépenses annuelles d'énergie pour un usage standard : entre 10.00 et 10.00 sur les années 2021, 2022 et 2023 (abonnements compris). Les informations sur les risques auxquels ce bien est exposé sont disponibles sur le site Géorisques : georisques.gouv.fr.