Honoraires à la charge de l'acquéreur (Prix hors honoraires : 300000 euros).
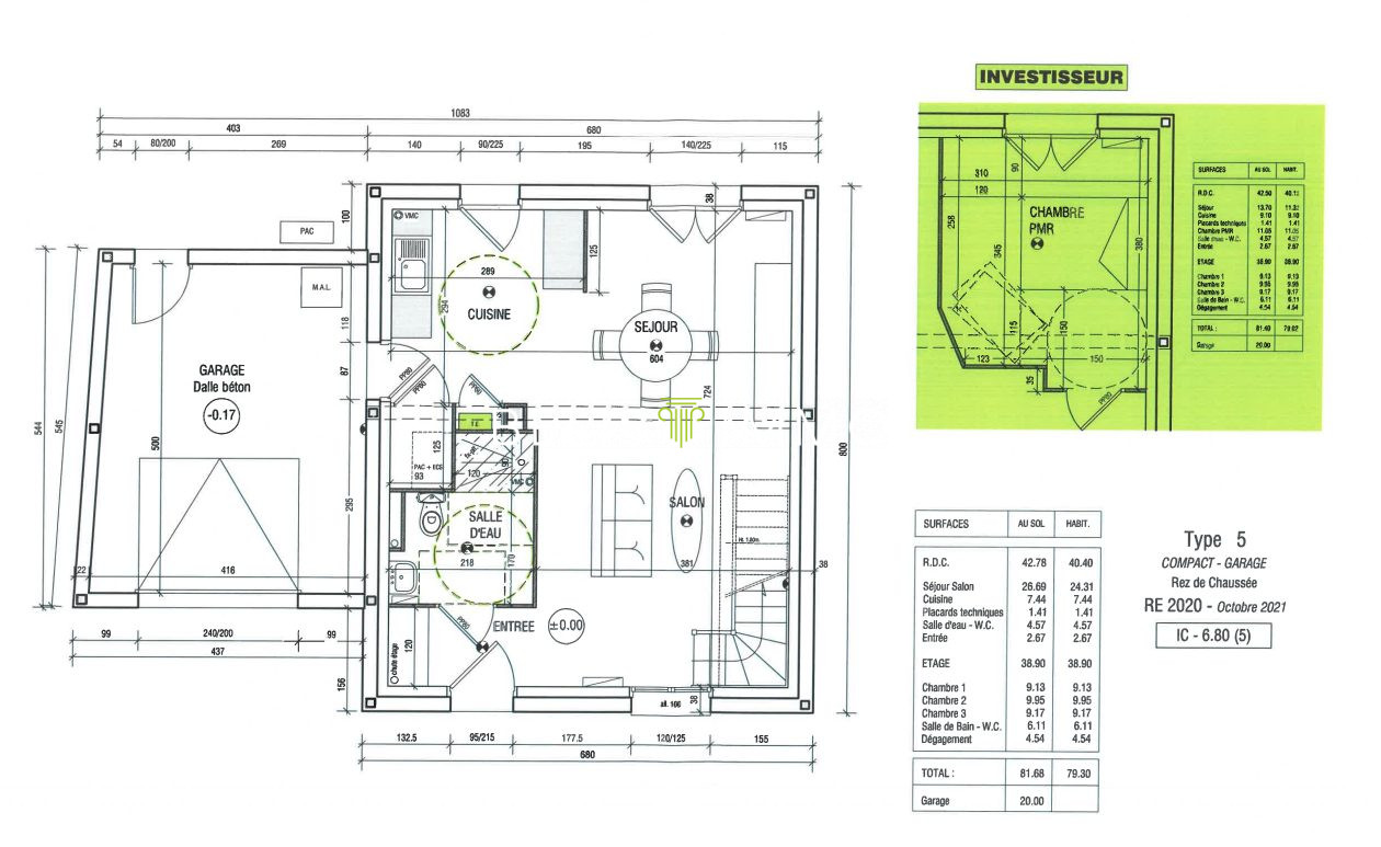
Au bout d'une allée, vous découvrirez cette MAISON TRADITIONNELLE de 108 M² habitables - 4 chambres dont 1 plain pied
Poussez sa porte d'entrée pour trouver un grand espace de vie avec son salon/séjour lumineux exposé plein sud, sa cuisine ouverte contiguë au cellier attenant au garage avec grenier et toujours de plain pied une chambre avec sa salle d'eau privative et wc.
A l'étage : un palier dessert 3 chambres dont 2 avec rangements intégrés, une grande salle de bains et wc séparés.
Une terrasse donne sur le terrain de 1515 m² qui sera parfait pour les amateurs de jardin et de nature, un abri pourra recevoir tout le matériel nécessaire ou pour y faire votre atelier.
Située dans un quartier résidentiel, cette maison est proche de toutes les commodités, prête à accueillir une famille en quête de confort et tranquillité.
Informations complémentaires : DPE : Classe D - GES : Classe B
Prix : 315 000 Honoraires à la charge de l'acquéreur 5%
!!! Bien agréable dans un environnement paisible !!!
Contactez Sylvie SZABO pour plus d'informations et organiser une visite. Belis Immo 9 Rue du Maréchal Foch, 37270 Montlouis-sur-Loire Consultez www.georisques.gouv.fr pour les informations sur les risques éventuels.
Honoraires inclus de 5% TTC à la charge de l'acquéreur. Prix hors honoraires 300 000 . Classe énergie D, Classe climat B Montant estimé des dépenses annuelles d'énergie pour un usage standard : entre 2026.00 et 2742.00 sur les années 2021, 2022 et 2023 (abonnements compris). Les informations sur les risques auxquels ce bien est exposé sont disponibles sur le site Géorisques : georisques.gouv.fr.