Maison très haut de Gamme coeur Montchat avec jardin de 450 m
Lyon 69003
0
Honoraires à la charge du vendeur.
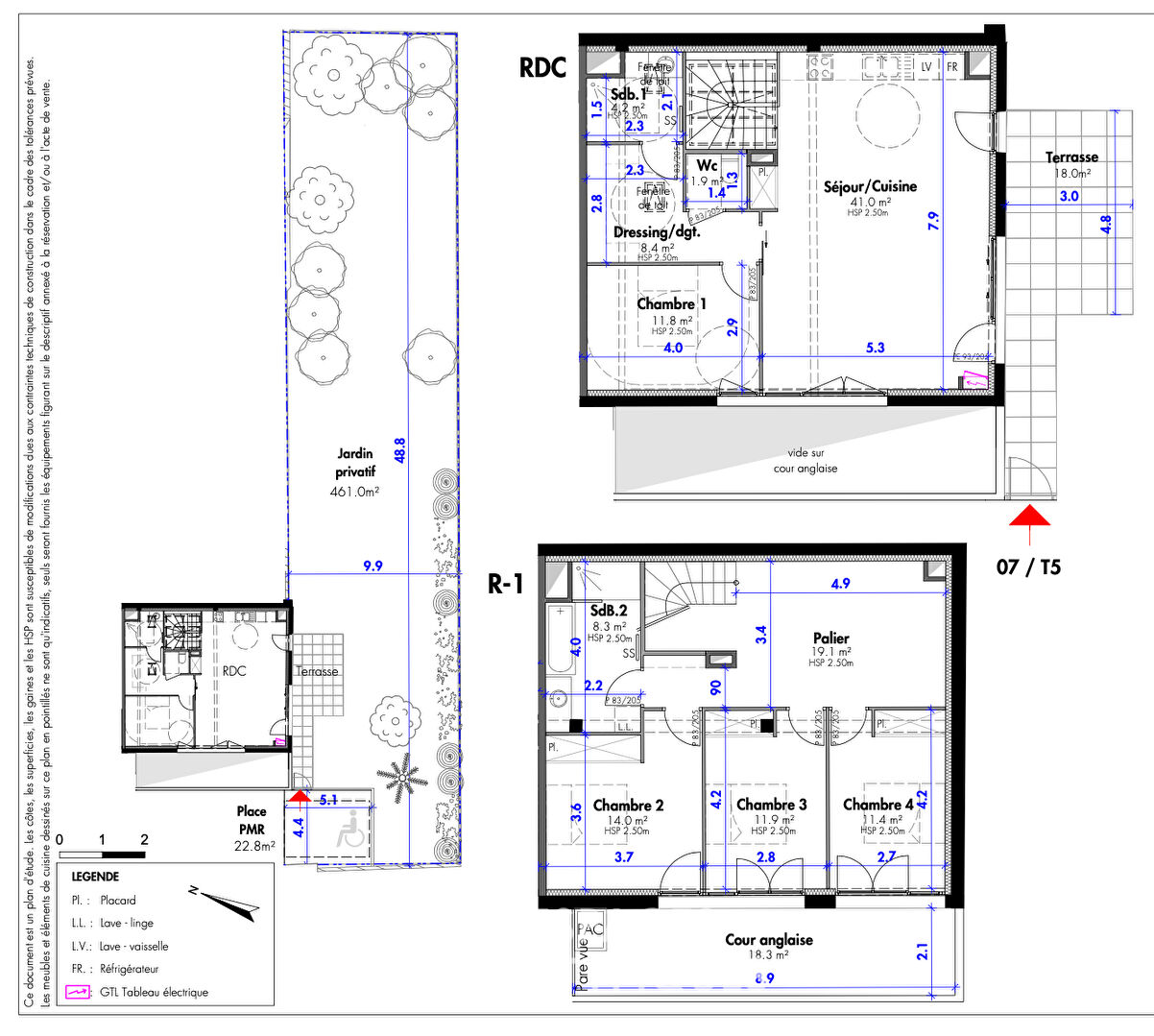
LYON IMMOBILIER vous présente cette maison entièrement rénovée de 132 m2, située au coeur du très prisé quartier de Montchat, dans une rue calme et recherchée. Véritable havre de paix, cette maison en duplex inversé séduit par ses volumes généreux, sa luminosité et son magnifique jardin arboré de 450 m2, rare sur le secteur. Au rez-de-chaussée, la pièce de vie de 41 m2 avec cuisine ouverte s'ouvre sur une terrasse de 18 m2 exposée plein sud, offrant une vue dégagée sur le jardin et un cadre verdoyant sans vis-à-vis. Une chambre, un grand dressing, une salle de bains et un WC indépendant complètent ce niveau. Au niveau inférieur, vous découvrirez une seconde pièce de vie, une salle de bains ainsi que trois chambres bénéficiant chacune d'un accès direct à une cour anglaise de 18 m2, apportant lumière naturelle et confort. Cette maison a été rénovée dans le respect des normes acoustiques et thermiques les plus récentes et dispose d'un chauffage par pompe à chaleur pour une performance énergétique optimale. Place de stationnement PMR incluse. DPE en cours. Un emplacement d'exception : à seulement 200 m de la Place Ronde, 250 m du cours du Docteur Long et 450 m du tramway T3, alliant tranquillité, proximité des commerces et facilité d'accès au centre-ville. L'avis de l'expert : Une opportunité unique d'acquérir une maison alliant confort, luminosité et avec un grand jardin arboré, au coeur de Montchat -- Calme absolu ! Pour tout renseignement ou visite, contactez Laurent FLEURY. Lyon Immobilier au service du particulier depuis 1972.
132 m²
6 780 €
41 m²
458 m²
6
4
2
1
2024
Sud
Ouest
1
1
Oui
Oui
Consommations énergétiques
Logement économe
49
Logement énergivore (kWhEP/m2/an)
Émissions de gaz à effet de serre
Faible émission de GES
1
Forte émission de GES(kgeqCO2/m2/an)
Contact FLEURY
Contacter gratuitement à l'aide du formulaire ci-dessous.