Maison de caractère, de 218 m² habitables situés en plein c?ur de Cazaubon. Elle se trouve dans un quartier calme tout en étant proche des commodités. Construite en 1970, cette demeure bourgeoise a été rénovée en 2023 avec soin pour offrir un confort moderne tout en conservant son charme intemporel. Implantée sur un terrain clos et arboré de 1377 m², elle séduit par ses volumes généreux, ses prestations contemporaines.
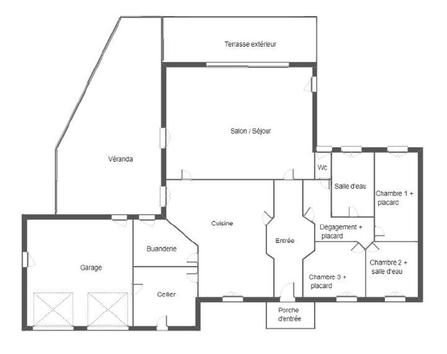
Au rez-de-chaussée, vous découvrirez une grande pièce de vie de 86 m², lumineuse, avec cheminée insert, poutres apparentes, sol en travertin, plafond cathédral, l'ensemble donnant sur la terrasse principale .
La cuisine aménagée fait 11,5 m², un bureau de 12 m² complète ce niveau, ainsi qu'une suite parentale de 30 m² . La suite dispose d'un dressing de 8 m², d'une salle d'eau de 8,5 m² et d'un WC, ainsi qu'un SPA de 5 m², créant un véritable espace de détente. Un cellier de 12 m², un atelier, un garage de 24 m² viennent également compléter le rez-de-chaussée.
L'étage abrite, deux chambres (13,5 m² avec placard et 11,5 m² avec balcon) offrent confort et espace, accompagnées d'une salle d'eau de 4,5 m² et de WC séparés.
À l'extérieur, une grande terrasse de 160 m² invite aux réceptions estivales. Elle est complétée par une seconde terrasse de 20 m² équipée d'un barbecue et d'une cuisine d'été, ainsi qu'un terrain de pétanque. La piscine 8.25 X 3.57 couverte, permet de profiter des beaux jours en toute sérénité.
Côté stationnement, cette propriété dispose d'un parking privé pouvant accueillir six véhicules, ainsi que deux places à proximité des garages.
Entièrement rénovée, la maison bénéficie de prestations haut de gamme : murs extérieurs doublés style DÉCOPIERRE, isolation renforcée, toiture démoussée et vérifiée, volets roulants électriques, chauffage par pompe à chaleur récent, cheminée avec insert, fibre optique et portail automatique, tout-à-l'égout, volets roulants, borne de recharge électrique.
Ce bien d'exception à Cazaubon offre un cadre de vie à la fois prestigieux et chaleureux, idéal pour une famille recherchant espace, confort et tranquillité, à deux pas du centre-ville.
.Les informations sur les risques auxquels ce bien est exposé sont disponibles sur le site Géorisques : www. georisques. gouv. fr.
Honoraires : 3.92% du prix de vente.Pour plus d'informations et pour une visite, contactez Hervé DESPLAT : CLAIRIMMO Barbotan - 3 avenue des Thermes 32150 CAZAUBON - Service Transaction : 05 62 03 70 61 Service Location : 05 32 09 35 20 email : agencebarbotan@clairimmo.email RCS 851 986 620 Agent commercial indépendant du réseau national Clairimmo N° RSAC : 495 108 755
218 m²
1 826 €
1377 m²
7
3
1
2
2
1970
Consommations énergétiques
Logement économe
146
Logement énergivore (kWhEP/m2/an)
Émissions de gaz à effet de serre
Faible émission de GES
4
Forte émission de GES(kgeqCO2/m2/an)
Contact Clairimmo Barbotan
Contacter gratuitement à l'aide du formulaire ci-dessous.