Découvrez cette spacieuse maison de 163 M² située sur la commune de Vénissieux (69200), édifiée sur un terrain de 710 m² entièrement clos et arboré.
Proche de toutes les commodités (écoles, commerces, transports), cette propriété offre un cadre de vie idéal pour une grande famille ou pour accueillir deux foyers distincts grâce à ses deux espaces de vie indépendants.
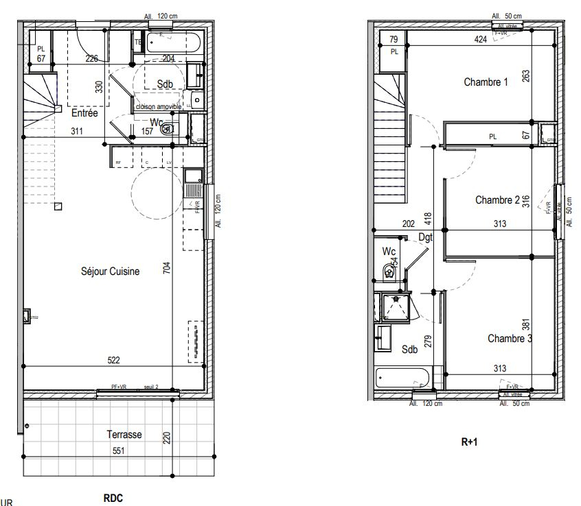
Rez-de-chaussée :
Salon/salle à manger conviviale et lumineuse
Cuisine
deux chambres confortables dont une avec salle d'eau (à finir)
Salle d'eau et WC
Accès direct à la piscine, parfaite pour les beaux jours.
Étage (logement indépendant) :
3 chambres spacieuses
Salon et salle à manger
Cuisine indépendante
Salle de bain et WC séparés
A l'extérieur, vous profiterez d'un grand terrain de 800 m² avec de nombreuses places de parking, idéales pour accueillir famille et amis ou plusieurs véhicules.
Cette maison offre un fort potentiel : parfaite pour deux familles, un projet intergénérationnel, ou encore un investissement locatif.
Disponible dès maintenant, N'attendez plus et prenez rendez-vous pour une visite !
Idéal pour investisseur.
DPE : D
Prix de vente : 499.000 euros, honoraires à la charge du vendeur.
Pour visiter et vous accompagner dans votre projet, contactez Thierry Coll, agissant sous le statut de conseiller immobilier indépendant auprès de la SAS Propriétés Privées au 06 62 37 23 23 ou par courriel à t.coll@proprietes-privees.com.
Mandat n° 423274
RCS 487 624 777
Le professionnel vous conseille, garantit et sécurise votre projet immobilier.
Copropriété de 2 lots ().
Les informations sur les risques auxquels ce bien est exposé sont disponibles sur le site Géorisques : www. georisques. gouv. fr
163 m²
3 061 €
710 m²
7
5
1
1
2
1974
Aménagée
Oui
Consommations énergétiques
Logement économe
204
Logement énergivore (kWhEP/m2/an)
Émissions de gaz à effet de serre
Faible émission de GES
6
Forte émission de GES(kgeqCO2/m2/an)
Contact Thierry COLL
Contacter gratuitement à l'aide du formulaire ci-dessous.