CTUL 4 PIECES LOUVIERS (27400) 2 LIVRAISON SEPTEMBRE 2025 SE RENSEIGNER POUR LES REMISES EN COURS LES IMAGES DE PUBLICITE NE SONT PAS CONTRACTUELLES. CPI92012021000000226
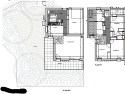
LOT 801 Maison 4 pièces Rez de jardin 82.17m2 ANNEXE 100.60m2 265?023,7 EUR PARKING INCLUS