CMDEP MAISON 5 PLAILLY (60128) 2 Livraison : novembre 2026 Se renseigner pour les remises en cours Les images de publicité ne sont pas contractuelles. La commission de l'agence immobilière est payée par le mandant. Le prix de vente affiche est hors frais d'agence. C'est le prix communique par le promoteur. CPI92012021000000226
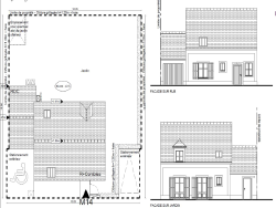
Maison familiale individuelle non mitoyenne. Maison individuelle en accession à la propriété. LOT FRAMB 10 Maison 5 pièces (1 CHAMBRE AU NIVEAU BAS) Nombre de chambres : 4 Surface Habitable 95.37m2 TERRAIN 349.00m2 406?000 EUR Prix de vente TTC (TVA 20%) Garage couvert et Parking extérieur Taxe foncière approximative : 1?680 EUR Les Frais de Notaire vous sont offerts jusqu'au 31/12/2025. Les informations sur les risques auxquels ce bien est exposé sont disponibles sur le site Géorisques : www.georisques.gouv.fr