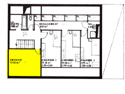
En exclusivité chez Art de Vie Immobilier. Face au lycée notre dame de Bury dans le très recherché parc de MAUGARNY résidentiel et sécurisé, cette maison de 1702 en très bon état se compose de 7/8 pièces dont 6 Chambres. - Au RDC ; -1 double séjour lumineux de 37 m2 sur une terrasse. - 1 hall d'entrée de 9m2 -1 cuisine de 10m2. -1 salle de douche. -1 chambre de 15m2 ouverte sur terrasse. - 1 chambre de 14m2 ouverte sur terrasse. -1 dressing. - 1 rangement sous escalier. -1 wc séparé. -1 jardin paysagé parfaitement entretenu et cloturé. - 1 DOUBLE GARAGE - Stationnements multiples devant la maison. A L'ETAGE ; 4 chambres de 10m2 à 14m2. -1 wc séparé. -1 salle de bain. -1 salle d'eau - de nombreux rangements dans le couloir desservant les différentes chambres. - 1 Bel espace en soupente servant de rangement.
LOISIRS : Vous êtes sportif, vous n'êtes qu'à quelques foulées ou coups de pédales de la forêt pour pratiquer vos sports et activités favorites. Tous les clubs de sports sont représentés dans un rayon de 2 KLM Vous jouez au golf !! 3 golfs sont à moins de 20 minutes et celui de DOMONT à 5 minutes. Deux aérodromes, Pontoise à 30 minutes et Moisselles à 10 minutes. GENERALITES ; L'environnement est de qualité tout comme le voisinage qui est respectueux des règles élémentaires de vie. Le d'un jardin est bien exposé entièrement clos et sécurisé Ainsi aux beaux jours, enfants et parents profiterons du jardin pour y réaliser barbecues, siestes digestives et autres activités récréatives. La gare d'Ermont est à 10 minutes (ligne H) Le Bus 3801 desservant la gare d'Ermont et d'Enghien est à 200 mètres. L'autoroute A15, A115 sont à 5 minutes. Roissy Charles de Gaulle est à 25 minutes. Foncier 2500EUR. BON A SAVOIR ; Les fenêtres sont en double vitrage, les volets sont motorisés. Le système de chauffage est neuf. La toiture est en ardoise et parfaitement saine. Les gouttières et descentes de gouttières sont en Zinc INFORMATION : Honoraires charge acquéreur. Afin de ne pas vous faire perdre votre temps, sachez que les photos et la description sont parfaitement conforment et reflètent la réalité. En conclusion si cette description vous convient, je vous invite à me contacter au plus vite pour aller découvrir ensemble cette maison rare sur le marché. LAURENT VOIRIN Art de Vie Immobilier Les informations sur les risques auxquels ce bien est exposé sont disponibles sur le site Géorisques : www.georisques.gouv.fr
170 m²
3 676 €
700 m²
7
6
16/06/2025
1
Oui
Oui
Oui
Consommations énergétiques
Logement économe
191
Logement énergivore (kWhEP/m2/an)
Émissions de gaz à effet de serre
Faible émission de GES
6
Forte émission de GES(kgeqCO2/m2/an)
Contact Voirin
Contacter gratuitement à l'aide du formulaire ci-dessous.