Stéphane LAROBE vous propose à Yzeure proche du pont de Foulet, cette maison de 1936 avec jardin et garage.
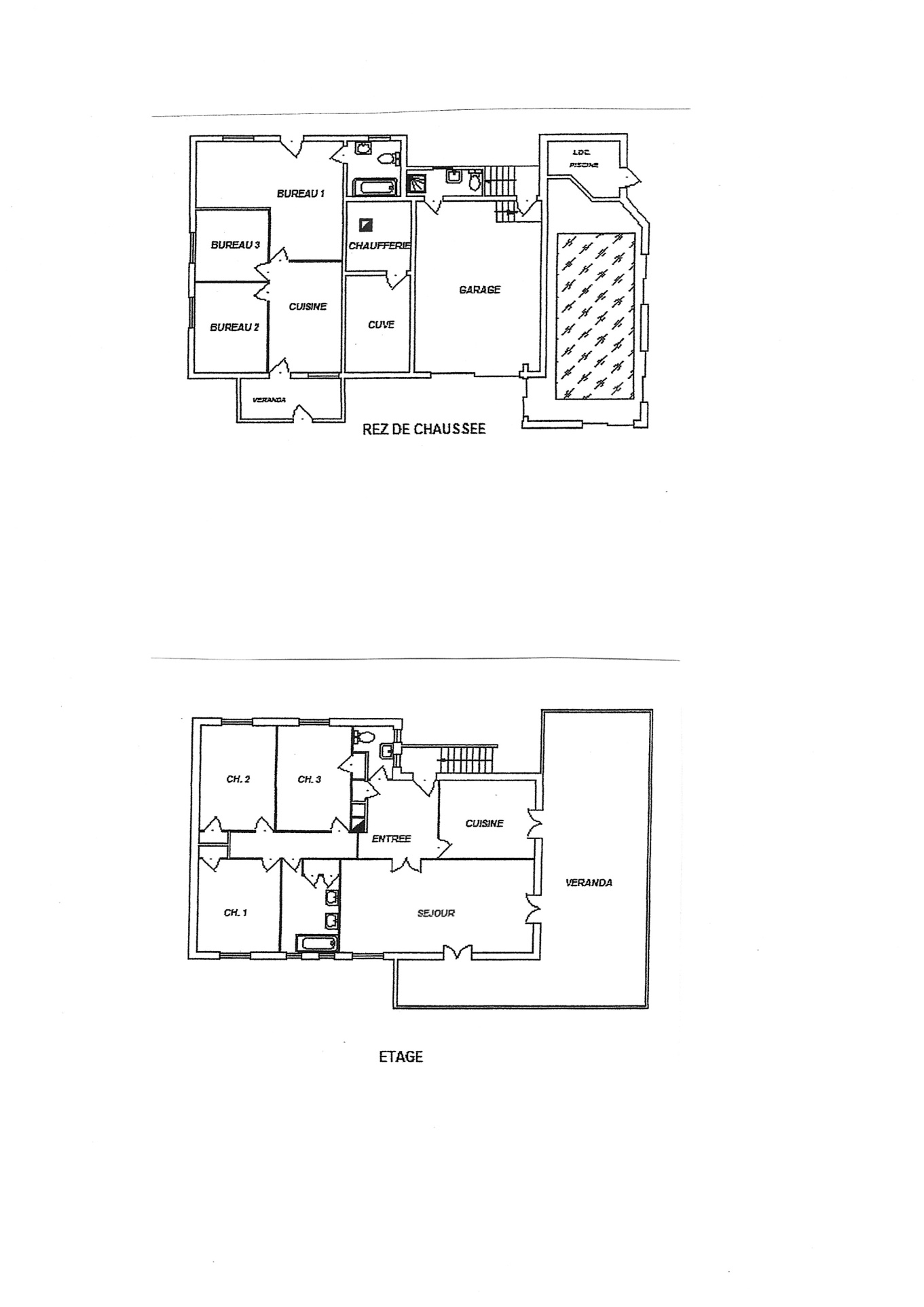
Celle-ci dispose au RDC d'une entrée, avec accès directement sur le garage, d'un grand séjour avec cheminée en marbre et d'une cuisine avec accès sur le jardin.
A l'étage un très grand palier distribue 4 grandes chambres, un WC, une salle de bains.
Un sous-sol sur toute la superficie de la maison vous permettra d'aménager un atelier, une cave, etc... et des combles aménageables laissent envisager un beau potentiel d'agrandissement !!
Chauffage central au gaz. Prévoir une enveloppe travaux.
Prix : 212 000 euros honoraires charge vendeur.
Pour visiter et vous accompagner dans votre projet, contactez Stéphane LAROBE, au 0679966255 ou, par courriel à s.larobe@proprietes-privees.com.
Selon l'article L.561.5 du Code Monétaire et Financier, pour l'organisation de la visite, la présentation d'une pièce d'identité vous sera demandée.
Cette présente annonce a été rédigée sous la responsabilité éditoriale de Stéphane LAROBE agissant sous le statut d'agent commercial immatriculé au RSAC cusset 485097349 auprès de SAS PROPRIETES PRIVEES, au capital de 44 920 euros, ZAC LE CHÊNE FERRÉ - 44 ALLÉE DES CINQ CONTINENTS 44120 VERTOU; SIRET 487 624 777 00040, RCS Nantes. Carte Professionnelle Transactions sur immeubles et fonds de commerce (T) et Gestion immobilière (G) n°CPI 4401 2016 000 010 388 délivrée par la CCI Nantes - Saint Nazaire. Compte séquestre n°30932508467 BPA SAINT-SEBASTIEN-SUR-LOIRE (44230). Garantie GALIAN-SMABTP - 89 rue de la Boétie, 75008 Paris - n°28137 J pour 2 000 000 euros pour T et 120 000 euros pour G. Assurance responsabilité civile professionnelle par GALIAN-SMABTP n° de police 28137.J
Mandat réf : 418458
Stéphane LAROBE (EI) Agent Commercial - Numéro RSAC : cusset 485097349 - .
Les informations sur les risques auxquels ce bien est exposé sont disponibles sur le site Géorisques : www. georisques. gouv. fr
163 m²
1 301 €
522 m²
6
4
1
Oui
Consommations énergétiques
Logement économe
289
Logement énergivore (kWhEP/m2/an)
Émissions de gaz à effet de serre
Faible émission de GES
63
Forte émission de GES(kgeqCO2/m2/an)
Contact Stéphane LAROBE
Contacter gratuitement à l'aide du formulaire ci-dessous.