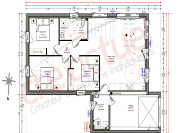
Devenez propriétaire de cette maison confortable de 78 m2 composée d'une belle pièce de vie lumineuse de 33 m2 et de 3 chambres . Sur un terrain de 360 m2 situé sur la Commune de ALLINEUC, proche du centre et des commerces, ce projet de maison contemporaine saura vous séduire. Rencontrons-nous !
Permis de construire prêt à déposer. Prix clé en main tous frais inclus (Frais de notaire, bornage, viabilisation et raccordements, assurance dommage ouvrage) à partir de 199 600 € TTC FRAIS D'AGENCE INCLUS. Disponibilité sous réserve de notre partenaire foncier. Prix susceptible d'évoluer (source tarif 2025) hors adaptation au sol.
Pour votre projet, faites confiance à Cre'Actuel, créateur et constructeur de maisons individuelles.
"Visuels non contractuels. Maison conforme à la règlementation RE 2020 sous réserve de l'implantation et de l'exposition du projet de construction sur le terrain."
78 m²
2 559 €
360 m²
4
3
1
Consommations énergétiques
Logement économe
50
Logement énergivore (kWhEP/m2/an)
Contact AVL 2 / MAISON CRE'ACTUEL
Contacter gratuitement à l'aide du formulaire ci-dessous.