Maisons neuves à vendre à Morne-À-L'Eau avec CAPITAL IMMOBIL
Morne-À-l'Eau 97111
0
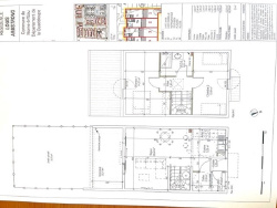
RESIDENCE MODERNE LES JARDINS DE PERRIN BEAU PROGRAMME NEUF DE 44 VILLAS MITOYENNES EN DUPLEX T3 ET T4 A PERRIN MORNE A L EAU SOIT A DEUX PAS DU NOUVEL HOPITAL QUI EST EN COURS DE CONSTUCTION. SOYEZ LES PREMIERS A RESERVER CE NOUVEAU PROGRAMME.À MORNE A L'EAU, en campagne calme. N'hésitez pas à contacter votre agence CAPITAL IMMOBILIER. Exemple un T3 : Entrée 3.53 m2 - Séjour : 23.44 m2 - Cuisine ouverte : 5.30 M2 - Cellier : 2.18 m2 - WC rdc / 1.53 m2 - Palier : 2.80 m2 - Chambre 1 : 14.57 m2 Chambre 2 : 12.89 M2 sdb avec attente deuxième wc 4.51 m2. Varangue 12.01 m2 - Jardibn privatif 32 m2
Villa
70.75 m²
3 877 €
23 m²
3
2
1
1
2024
1
1
Oui (44 lots)
Contact CAPITAL IMMOBILIER
Contacter gratuitement à l'aide du formulaire ci-dessous.