Honoraires à la charge de l'acquéreur (Prix hors honoraires : 308000 euros).
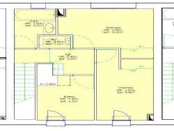
Maison lot 2 : Composée : Au rez-de-chaussée : séjour, cuisine ouverte, cellier, WC séparés, dégagement Au 1er étage : palier, chambre 1, chambre 2, bureau, salle d'eau, WC séparés. Combles : palier, une chambre mansardée et salle de bain avec WC. Garage en sous-sol et buanderie. Sur cour de 32.05 m². Parcelle, environ 105 m². Au prix de (honoraires de négociation inclus) : 321 800 Clefs en main : 328 793
Honoraires inclus de 4.48% TTC à la charge de l'acquéreur. Prix hors honoraires 308 000 . Classe énergie A, Classe climat A Montant estimé des dépenses annuelles d'énergie pour un usage standard : entre 391.00 et 529.00 sur les années 2021, 2022 et 2023 (abonnements compris). Les informations sur les risques auxquels ce bien est exposé sont disponibles sur le site Géorisques : georisques.gouv.fr.
85.2 m²
3 777 €
30 m²
32 m²
5
3
1
2 (séparés)
4.48 %
2025
1
Consommations énergétiques
Logement économe
43
Logement énergivore (kWhEP/m2/an)
Émissions de gaz à effet de serre
Faible émission de GES
1
Forte émission de GES(kgeqCO2/m2/an)
Contact Clémentine LETHELIER
Contacter gratuitement à l'aide du formulaire ci-dessous.