14600 ? HONFLEUR ? MAISON DE CARACTÈRE ? 5 CHAMBRES ? PISCINE CHAUFFÉE ? TERRAIN DE 11 000 m²
Située à seulement vingt minutes à pied du centre de Honfleur, cette maison de caractère datant de 1793 s'élève au c?ur d'un environnement verdoyant et paisible, sur un terrain de plus d'un hectare.
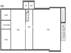
Elle offre une surface habitable de 190,70 m² comprenant un séjour spacieux et lumineux de 45,60 m², une salle à manger conviviale de 22,10 m² et une cuisine fonctionnelle. L'espace nuit se compose de cinq chambres, dont une suite parentale de 14 m², ainsi que de trois salles de bains. Une annexe indépendante de 12,90 m², accessible de l'extérieur, complète l'ensemble et permet d'accueillir en toute intimité.
À l'extérieur, le parc arboré entoure la propriété et crée un cadre agréable pour les beaux jours. La piscine chauffée dispose d'un liner récemment remplacé et s'accompagne d'une terrasse propice à la détente. Un trampoline et un espace barbecue apportent une touche de convivialité supplémentaire.
Proche des plages et des attraits de la côte normande, la propriété se situe également à quelques kilomètres de destinations emblématiques telles que Deauville, Étretat et Cabourg.
Cette maison séduira les amateurs d'authenticité à la recherche d'un bien ancien au charme préservé, idéalement situé entre campagne et littoral.
Les informations sur les risques auxquels ce bien est exposé sont disponibles sur le site Georisque : georisques. gouv. fr
Arnaud Maurel - EI - est Agent Commercial mandataire en immobilier, immatriculé au Registre Spécial des Agents Commerciaux du Tribunal de Commerce de Nanterre sous le n°838439206.
Siège social du mandant : effiCity, 48 avenue de Villiers - 75017 PARIS - Société par Actions Simplifiée, société au capital de 132 373,05 euros, immatriculée au RCS Paris 497 617 746 et titulaire de la Carte professionnelle CPI 7501 2015 000 002 025 - CCI Paris IDF - Caisse de Garantie : GALIAN Assurances 89 rue de la Boétie 75008 Paris
194 m²
6 443 €
11000 m²
7
5
3
3
1793
Ouest
Oui
Oui
Consommations énergétiques
Logement économe
218
Logement énergivore (kWhEP/m2/an)
Émissions de gaz à effet de serre
Faible émission de GES
65
Forte émission de GES(kgeqCO2/m2/an)
Contact Arnaud Maurel
Contacter gratuitement à l'aide du formulaire ci-dessous.