Marseille 13008 Bonneveine - Agréable T4 de 74 m2 - Résidence arborée et sécurisée - 298.000
Marseille 13008
0
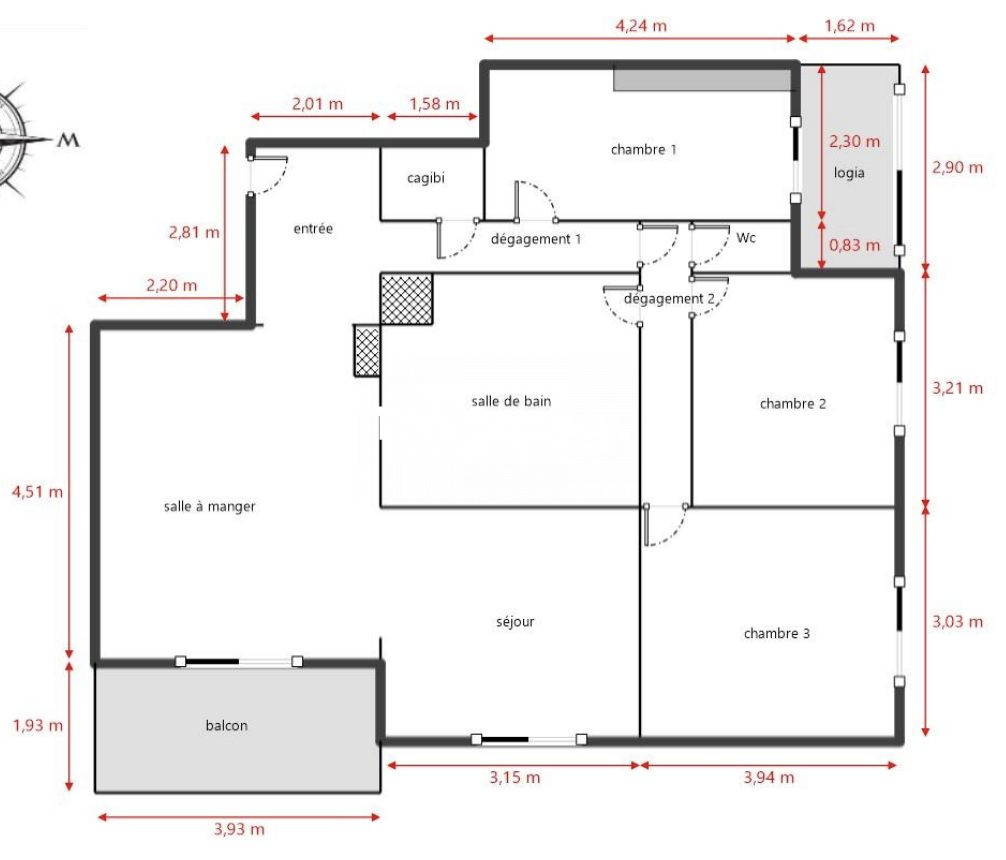
EXCLUSIVITÉ - Cet appartement T4 de 74m2 , se trouve au 1er étage d'un petit immeuble de 2 étages au sein d'une copropriété au calme, bordée d'espaces verts, et sécurisée. A proximité de Carrefour Bonneveine il offre un accès facile aux commerces et aux services quotidiens.
Plages et Escale Borély à 10 mn.
Très fonctionnel, l'entrée avec des rangements, permet d'accéder à salon lumineux , et une cuisine ouverte, et a une belle loggia vitrée de 7.36m2
Côté nuit, 3 chambres avec rangement, une salle d'eau avec douche à l'italienne et un WC séparé.
L'appartement bénéficie d'un double vitrage, qui lui donne un bon diagnostic énergétique pour une consommation maitrisée.
Une cave privative vient compléter ce bien
Parking libre dans la copropriété. Copropriété : Nb de lots : 99
Prix : 298.000 euros, Honoraires charge vendeur.
Le diagnostic a été réalisé avant le changement des fenêtres à double vitrage. DPE : C - GES : C
Montant estimé des dépenses annuelles d'énergie pour un usage standard entre 1030 euros et 1450 euros indexées aux années 2021, 2022 et 2023.
Pour visiter et vous accompagner dans votre projet, contactez Serge LITVINOFF, au 0617012159 ou, par courriel à s.litvinoff@proprietes-privees.com.
Selon l'article L.561.5 du Code Monétaire et Financier, pour l'organisation de la visite, la présentation d'une pièce d'identité vous sera demandée.
Cette présente annonce a été rédigée sous la responsabilité éditoriale de Serge LITVINOFF agissant sous le statut d'agent commercial immatriculé au RSAC Marseille 891 216 830 auprès de SAS PROPRIETES PRIVEES, au capital de 44 920 euros, ZAC LE CHÊNE FERRÉ - 44 ALLÉE DES CINQ CONTINENTS 44120 VERTOU; SIRET 487 624 777 00040, RCS Nantes. Carte Professionnelle Transactions sur immeubles et fonds de commerce (T) et Gestion immobilière (G) n°CPI 4401 2016 000 010 388 délivrée par la CCI Nantes - Saint Nazaire. Compte séquestre n°30932508467 BPA SAINT-SEBASTIEN-SUR-LOIRE (44230). Garantie GALIAN-SMABTP - 89 rue de la Boétie, 75008 Paris - n°28137 J pour 2 000 000 euros pour T et 120 000 euros pour G. Assurance responsabilité civile professionnelle par GALIAN-SMABTP n° de police 28137.J
Mandat réf : 419059 - Le professionnel garantit et sécurise votre projet immobilier.
Les informations sur les risques auxquels ce bien est exposé sont disponibles sur le site Géorisques : www.georisques.gouv.fr
Copropriété de 165 lots - dont 99 lots habitation. ().
Charges annuelles : 2160 euros.
Serge LITVINOFF (EI) Agent Commercial - Numéro RSAC : Marseille 891 216 830 - .
74 m²
4 027 €
29 m²
4
3
1
1
1
1 sur 2
Sud
Ouest
Oui
Oui
Consommations énergétiques
Logement économe
133
Logement énergivore (kWhEP/m2/an)
Émissions de gaz à effet de serre
Faible émission de GES
21
Forte émission de GES(kgeqCO2/m2/an)
Contact Serge LITVINOFF
Contacter gratuitement à l'aide du formulaire ci-dessous.