Mas Provencal - Un potentiel rare à Althen des Paluds
Althen-des-Paluds 84210
0
Honoraires à la charge du vendeur.
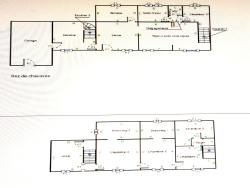
ALTHEN-DES-PALUDS: Mas d'environ 240 M2 habitables à réinventer selon vos envies, plus environ 100 M2 de dépendances... sur terrain d'environ 1600M2 clos , avec possibilité d'acquérir jusqu'à environ 9800M2 au total pour les amoureux de grands espaces ou de chevaux ... Ce mas a une toiture et charpente saine, il est relié à l'eau de la ville et au forage, il faudra prévoir une remise aux normes du système d'assinissement individuel...Des travaux sont nécessaires pour en faire une belle demeure familiale et allier le prestige de l'ancien au confort moderne... Merci de bien vouloir me contacter pour informations et visites. Cette annonce vous est proposée par VIVIERS Christelle - SAS - NoRSAC: 522484831, Enregistré à Greffe du tribunal de commerce de FONTAINE DE VAUCLUSE - Annonce rédigée et publiée par un Agent Mandataire -
240 m²
1 954 €
10
5
1890
Sud
Consommations énergétiques
Logement économe
232
Logement énergivore (kWhEP/m2/an)
Émissions de gaz à effet de serre
Faible émission de GES
7
Forte émission de GES(kgeqCO2/m2/an)
Contact Iad France - Christelle VIVIERS
Contacter gratuitement à l'aide du formulaire ci-dessous.