MAUBEUGE L'ÉPINETTE PROCHE COMMODITÉS MAISON À VENDRE
Maubeuge 59600
0
Honoraires à la charge de l'acquéreur (Prix hors honoraires : 90000 euros).
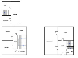
Véronique ROBERT (06 14 46 72 29) vous propose À SAISIR MAISON SEMI-INDIVIDUELLE EN BRIQUE Située proche de toutes commodités, cette charmante maison familiale offre de beaux volumes et un cadre de vie agréable. Elle se compose : d'un Hall d'entrée accueillant, Un Séjour lumineux avec cheminée & insert, Une Cuisine équipée, WC avec lave-mains - À l'étage : 3 chambres confortables, Une Salle de douches En plus : Un Sous-sol complet avec espace buanderie Un Garage pratique - Terrain clos idéal pour la famille ou les beaux jours Une belle opportunité à ne pas manquer contactez-moi vite ! Les informations sur les risques auxquels ce bien est exposé sont disponibles sur le site Géorisques : www.georisques.gouv.fr TIGRE IMMOBILIER MAUBEUGE JEUMONT www.tigre-immobilier.fr - 0327649216 ou 0327582626
80 m²
1 209 €
24 m²
238 m²
5
3
1
1
7.50 %
1970
1
1
Consommations énergétiques
Logement économe
393
Logement énergivore (kWhEP/m2/an)
Émissions de gaz à effet de serre
Faible émission de GES
56
Forte émission de GES(kgeqCO2/m2/an)
Contact ROBERT
Contacter gratuitement à l'aide du formulaire ci-dessous.