Métro mairie de Montreuil* Terrasse de 15m2* En bon état * l
Montreuil 93100
0
Honoraires à la charge du vendeur.
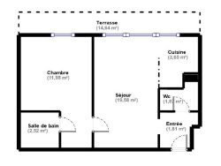
Toit Comme Vous présente cet appartement deux pièces de 41,41m2 loi Carrez avec une jolie terrasse de 15m2. Le bien se situe rue Pépin à proximité de la Mairie de Montreuil et du collège et lycée Jean Jaurès, dans une résidence parfaitement entretenue construite en 2000. Il est en rez-de-chaussé surélevé au calme sur une allée peu passante et un espace vert. Le bien se compose d'une entrée, d'une belle pièce à vivre de 23m2 avec cuisine ouverte donnant sur une terrasse de 15m2 orientée Est, d'une chambre de 12m2, d'une salle de bains et de wc séparés. Double vitrage, volet électrique, chauffage individuel électrique et le ballon d'eau chaude. En plus, il est possible d'acquérir avec un emplacement de parking en sous-sol pour 12 000e La réfection des parties communes de l'immeuble est votée, payée. Résidence sécurisée par interphone / visiophone et sas d'entrée. Exposition : Est Taxe foncière : 1 481EUR DPE : D Il est à noter que la rue Pépin deviendra en partie piétonne avec voie de circulation vélos, plantation d'arbres, îlots de fraîcheur pour une circulation plus douce et partagée. Le projet « Le Grand Chemin » a débuté en 2024 et se terminera en 2025. Montant estimé des dépenses annuelles d'énergie pour un usage standard : entre 830EUR et 1 170EUR par an. Prix moyens des énergies indexés sur l'année 2024 (abonnement compris).
Bien soumis à la copropriété (loi no 65-557 du 10/07/1965) : - Lots : 10 et 96 de copropriété de lots d'habitations - Montant moyen annuel de la quote-part de charges courantes : EUR/an - Pas de procédures en cours dans la copropriété.
Honoraires à la charge du vendeur.
45 m²
5 933 €
20 m²
2
1
1
1
120 € / mois
2000
Est
Oui
Oui
1
Oui
Oui (112 lots)
Consommations énergétiques
Logement économe
221
Logement énergivore (kWhEP/m2/an)
Émissions de gaz à effet de serre
Faible émission de GES
7
Forte émission de GES(kgeqCO2/m2/an)
Contact TALDIR Brice
Contacter gratuitement à l'aide du formulaire ci-dessous.