METZ-SABLON APPARTEMENT 1 PIECES BIS PROGRAMME NEUF
Metz 57000
0
Honoraires à la charge du vendeur.
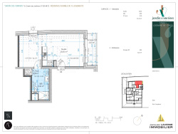
UNIQUE A METZ-SABLON! Dans un quartier prisé à proximité de toutes commodités, au calme en retrait de la circulation, dans résidence de standing neuve à dimension humaine de 13 logements, réservez votre appartement F1 BIS clé en mains surface bien pensée de 33,30m2 vaste séjour ouvert sur cuisine avec baies vitrées accès terrasse, coin couchage séparé, salle de douche-wc de + de 6m2. Prestations de qualité, pompe à chaleur air/eau, chauffage sol, performance énergétique garantie, ascenseur, accès pmr... Plans d'aménagement intérieur modifiables. A découvrir!
33.3 m²
4 498 €
26 m²
1
1
1
1
1 sur 4
65 € / mois
2026
Est
Oui
Oui
1
Oui
Oui
Contact LAVEINE
Contacter gratuitement à l'aide du formulaire ci-dessous.