Honoraires à la charge de l'acquéreur et du vendeur (Prix hors honoraires : 0 euros).
Les charges de location sont prévisionnelles mensuelles avec régularisation annuelle.
La part des honoraires pour la réalisation de létat des lieux de ce bien est de 330 euros.
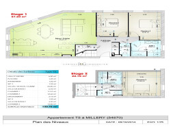
MILLERY : très bel appartement de type F5 en duplex comprenant une entrée, une cuisine, salon/séjour, trois chambres, deux salle de bains et deux WC.En sus, vous bénéficierez de deux box fermés. - Disponibilité : 04 mai 2026 - Loyer : 900 +50 d'avances sur charges comprenant eau chaude, eau froide, chauffage, entretien des communs et espaces vert et taxe d'ordures ménagères. - Dépôt des garantie : 900 - Honoraires agence : 900 TTC, (soit 570 correspondant aux visites, constitution du dossier de candidature, rédaction et réitération du bail + 330 correspondant aux états de lieux).
Honoraires de 900 TTC à la charge du locataire comprenant 330 TTC pour l'état des lieux. Loyer de base 900 /mois. Provision sur charges 50 /mois, régularisation annuelle. Dépôt de garantie 900 . Classe énergie D, Classe climat B. Montant moyen estimé des dépenses annuelles d'énergie pour un usage standard, établi à partir des prix de l'énergie de l'année 2021 : 1100.00 . Date de réalisation du DPE : 04-12-2014. Les informations sur les risques auxquels ce bien est exposé sont disponibles sur le site Géorisques : georisques.gouv.fr.