Miribel centre, maison de ville de 198m² à rénover, avec cave et garage
Miribel 01700
0
Honoraires à la charge du vendeur.
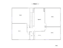
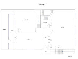
Votre agence Sixième Avenue est ravie de vous proposer cette maison de ville au fort potentiel, en plein coeur de Miribel, qui dispose d'une surface utile d'environ 198m². IDEAL Investisseurs locatifs, professions libérales, ou familles nombreuses. Une rénovation complète est à prévoir pour mettre en valeur les volumes et le potentiel d'aménagement de cette maison de ville. Au rez-de-chaussée (environ 60m²) : plusieurs pièces (atelier, dépendances, salle d'eau/WC...) composent ce niveau. Il est possible de l'aménager en appartement de type 3, ou d'imaginer une partie habitable plus modeste (en type 2) et une partie bureau/local professionnel (car ils existent deux entrées bien distinctes, dont une sur rue). Il est à noter que le rez-de-chaussée est indépendant de l'étage supérieur. Au premier étage (environ 62 m²) : un hall d'entrée dessert un salon/salle à manger, une cuisine (donnant accès sur une loggia et une terrasse d'environ 13m²), une chambre avec lavabo/WC, et un dégagement qui communique avec l'étage supérieur. Au deuxième étage (environ 61m²) : 4 chambres dont une avec salle de bains, un dégagement, et un WC. Une charmante cave voûtée de 54m² et un garage complètent le lot. DPE F (Estimation des coûts annuels entre 3 810 euros et 5 200 euros). Côté prestations : simple et double vitrage, chauffage gaz et fioul, combles isolées, présence d'amiante, anomalies électriques et gaz. Prix de vente : 270 000 euros (Honoraires à la charge du vendeur). Réf. SPI2238A Les informations sur les risques auxquels ce bien est exposé sont disponibles sur le site Géorisques http://www.georisques.gouv.fr et à l'agence. Pour tous renseignements, vous pouvez joindre votre agence au 04.26.22.94.36 ou via miribel@sixiemeavenue.com. Vous avez un projet de vente ? Alors contactez-nous ! Estimation gratuite de votre bien ! Anthony GALERA (EI) Agent Commercial - Numéro RSAC : 823577655 - Bourg en bresse.