Molliens-Dreuil, Pavillon individuel de 2012, 150m2
Amiens 80000
0
Molliens-Dreuil :
En exclusivité - Le Cabinet Immobilier Amiénois vous propose à la vente :
Ce charmant pavillon individuel de 150m2 avec 3 chambres (dont rdc vivable) comprenant :
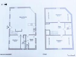
AU REZ DE CHAUSSEE :
- un espace de vie (salon/ séjour /cuisine) de 57m2 !
- buanderie de 8.5m2
- wc séparé
- salle de bain de 5.5m2
- une chambre de 12m2
AU 1ER ETAGE :
-un très grand palier de 14m2
- une salle de bain de 4.6m2
- 2 très belles grandes chambres de 22 et 24m2
Les extérieurs se composent :
- d'un coin terrasse/ jardin agréable et bien exposé de 150m2 avec son abri de jardin
- avec le charme d'un petit rieu le long de la parcelle
- de 2 stationnements extérieurs
Pavillon avec de très bonne performance énergétique ! DPE en B !
Bonne isolation, chauffage par géothermie !
Pour plus de renseignements, contactez Romain HECQUET :
au 06 24 21 58 52 ou par mail : cabinet@immobilier-amienois.fr
Prise de rendez vous possible sur le site de l'agence directement.
150 m²
1 499 €
57 m²
150 m²
5
2
2
2
2012
Américaine
Consommations énergétiques
Logement économe
97
Logement énergivore (kWhEP/m2/an)
Émissions de gaz à effet de serre
Faible émission de GES
3
Forte émission de GES(kgeqCO2/m2/an)
Contact Romain HECQUET
Contacter gratuitement à l'aide du formulaire ci-dessous.