Monplaisir - rue Villon - 162m2 - Balcon 21m2 et box
Lyon 69008
0
Honoraires à la charge du vendeur.
Monplaisir - rue Villon - T5 de 162m2 - Balcon 21m2
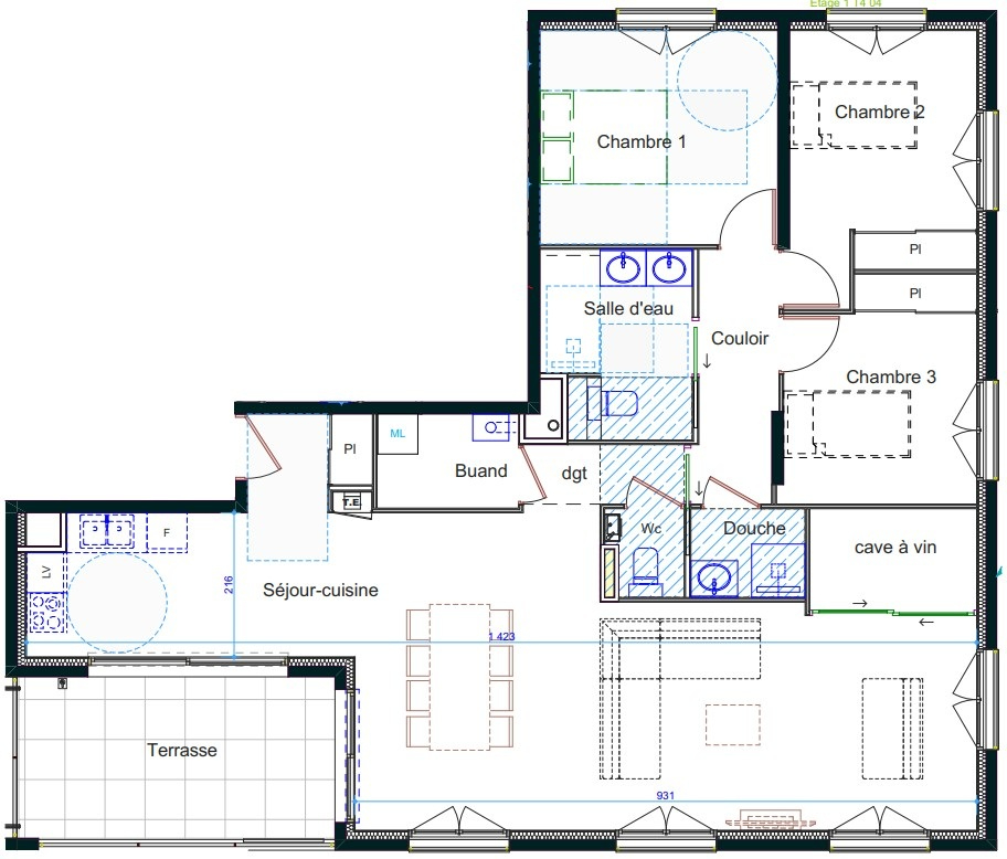
En plein coeur d'un quartier recherché, au pied des commerces, des écoles et du métro D, à 5 min de la Place Ambroise Courtois, venez découvrir ce bel appartement familial T5 de 162m2.
Situé au 2e étage avec ascenseur dans une petite copropriété calme et sécurisée, l'appartement dispose de beaux volumes, qui se compose comme suit :
Un espace de vie de plus 50 m2 avec deux grandes baies vitrées donnant sur un balcon de 21 m2 exposé sud. Une cuisine indépendante et une buanderie de 8m2. Une chambre de 12m2 avec accès également sur le balcon.
Côté nuit, vous trouverez 3 chambres lumineuses avec de nombreux placards / dressing, dont une suite parentale de 27 m2 avec salle d'eau, wc et dressing. Toutes ces pièces sont en parquet massif.
En complément, une salle de bain avec baignoire et double vasque, deux autres wc indépendants et des placards.
Tous les rangements sont aménagés avec rayonnage et penderie.
Vous apprécierez le calme de l'appartement, toutes les pièces donnent sur cour arborée, aucune sur rue. L'appartement est en très bon état, une partie de la rénovation date de 2020.
Vous disposerez d'une cave, et la possibilité d'acquérir un garage box dans la cour en supplément.
Informations : - DPE : D - Charges : 300 / mois (eau froide / chaude / chauffage collectif avec relevé individuel) - Taxe foncière 2022 : 1886 - Honoraires à charge vendeur. - Pas de procédure en cour.
N'hésitez pas à me contacter, Sophie Fromentin agent commercial (RSAC 440 973 980)
Honoraires à la charge du vendeur. Dans une copropriété de 108 lots. Aucune procédure n'est en cours. Classe énergie D, Classe climat D Montant moyen estimé des dépenses annuelles d'énergie pour un usage standard, établi à partir des prix de l'énergie de l'année 2021 : entre 1600.00 et 2240.00 . Les informations sur les risques auxquels ce bien est exposé sont disponibles sur le site Géorisques : georisques.gouv.fr.