MONTELIMAR appartement T3, dernier étage, avec balcon, garag
Montélimar 26200
0
Honoraires à la charge du vendeur.
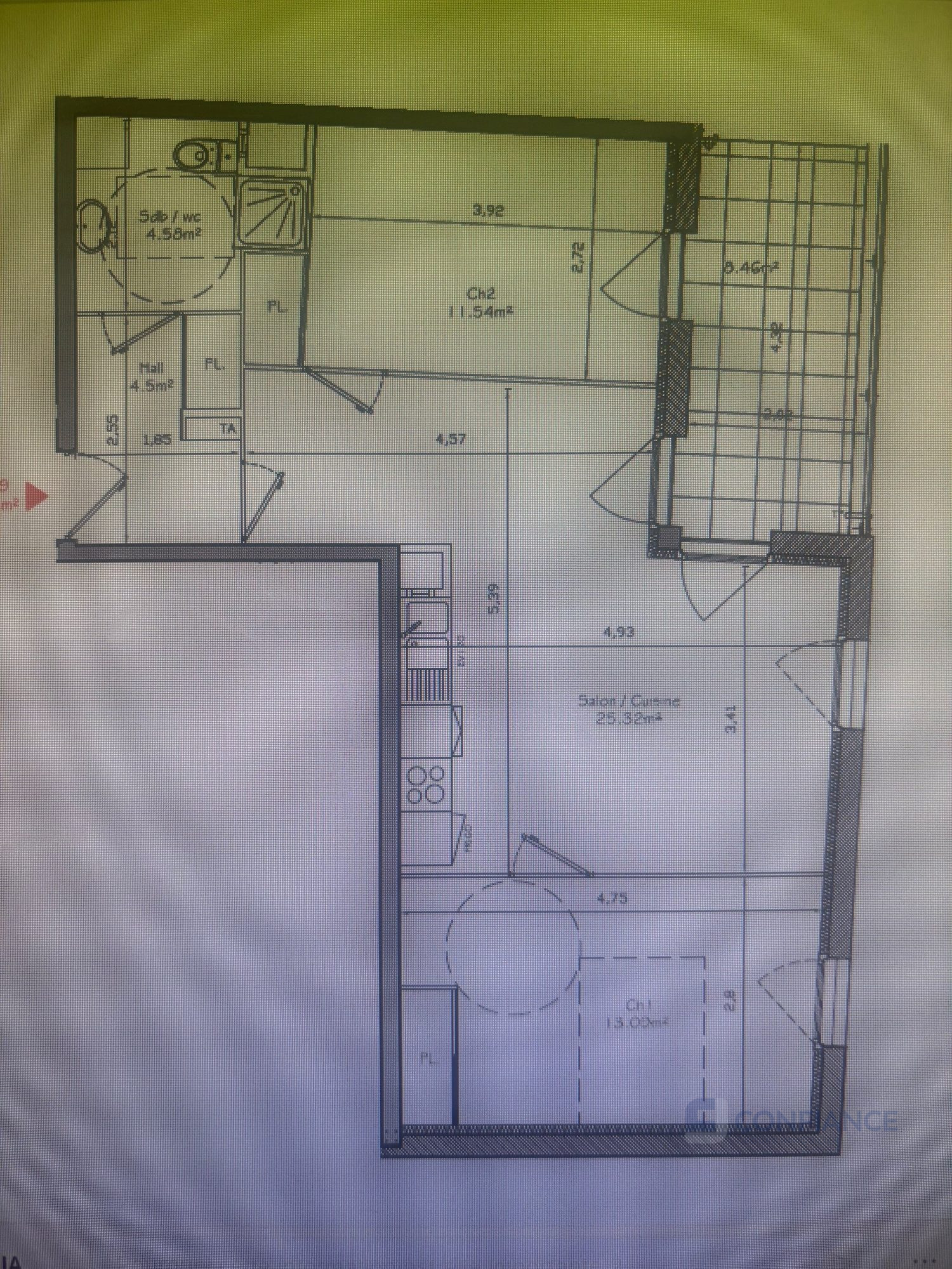
À vendre : appartement T3 lumineux situé au dernier étage d'une résidence ancienne, récemment rénovée sur le plan énergétique. Ce bien traversant Est-Ouest offre une belle lumière naturelle tout au long de la journée ainsi qu'une vue dégagée agréable depuis le séjour. L'appartement se compose de deux chambres, d'un séjour et bénéficie d'un garage ainsi que d'une cave, atouts rares et appréciables. La rénovation énergétique a été entièrement réalisée, permettant au logement d'atteindre une classe énergie C (nouvelle méthode) et une classe climat A, garantissant une bonne performance thermique. Les dépenses annuelles estimées pour le chauffage et l'eau chaude sanitaire sont comprises entre 910 EUR et 1 290 EUR. Situé dans une copropriété de 12 logements, les charges générales annuelles s'élèvent à 1 109 EUR. L'immeuble ne dispose pas d'ascenseur. Le prix de vente est fixé à 129 900 EUR, honoraires à la charge du vendeur. Mandat de vente no2901. Pour toute information ou visite, contactez Benjamin LE NY de l'agence Adhémar Immobilier au 06 32 65 69 42 ou au 04 75 54 42 14. Les informations relatives aux risques auxquels ce bien est exposé sont consultables sur le site : www.georisques.gouv.fr. INSPECT IMMO
55 m²
2 362 €
3
2
1
1
3 sur 3
95 € / mois
1965
Est
Ouest
1
Oui
2
1
Oui
Oui
Oui
Oui (12 lots)
Consommations énergétiques
Logement économe
140
Logement énergivore (kWhEP/m2/an)
Émissions de gaz à effet de serre
Faible émission de GES
23
Forte émission de GES(kgeqCO2/m2/an)
Contact LE NY
Contacter gratuitement à l'aide du formulaire ci-dessous.