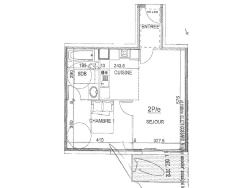
MONTIVILLIERS CENTRE - Nouveauté Dans résidence standing, 2012, appartement F2, lumineux avec ascenseur. Entrée, séjour avec cuisine USA 24 m2, balcon 6 m2 exposé ouest, chambre 11.50 m2, salle de bains + wc. Cave. Garage individuel avec électricité. Proche commerces et transports. Charges/an : 1 080 EUR - Lots : 79. « Les informations sur les risques auxquels ce bien est exposé sont disponibles sur le site Géorisques : www.georisques.gouv.fr »
44.03 m²
3 429 €
6 m²
24 m²
2
1
1
1
1
2012
Ouest
1 (6 m²)
Oui
Oui
1
Oui (90 lots)
Consommations énergétiques
Logement économe
102
Logement énergivore (kWhEP/m2/an)
Émissions de gaz à effet de serre
Faible émission de GES
20
Forte émission de GES(kgeqCO2/m2/an)
Contact CASTAIGNE
Contacter gratuitement à l'aide du formulaire ci-dessous.