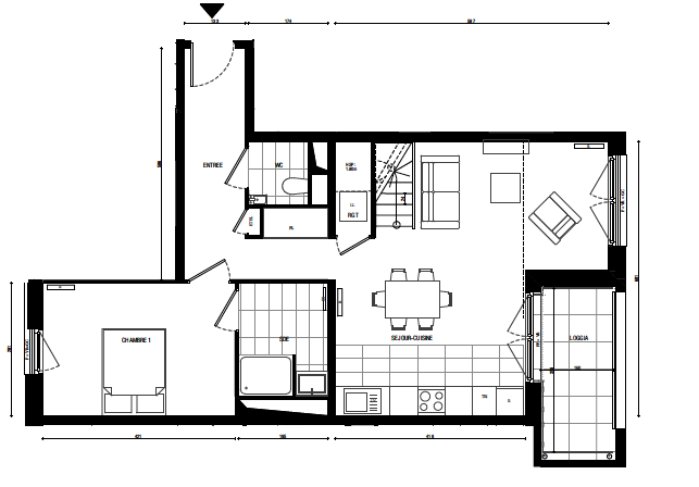
Lamarck Caulaincourt Dans un immeuble récent datant de 1975, bien entretenu, sécurisé et avec la présence d'une gardienne, ce bel appartement familial de 5 pièces se situe au troisième étage avec ascenseur. Offrant une surface de 89,09 m2 loi Carrez et deux terrasses d'une surface totale de 20m2, il séduit par sa luminosité, son agencement optimisé et sa vue dégagée. L'entrée, équipée d'une penderie, s'ouvre sur un séjour convivial avec cuisine ouverte, aménagée et équipée, prolongeant naturellement l'espace vers une terrasse de 12m2 exposée plein ouest et avec une vue dégagée sur le 'maquis'. Un petit salon attenant ajoute un espace de détente supplémentaire. La suite parentale dispose de sa propre salle d'eau et d'un dressing, tandis que deux autres chambres s'ouvrent sur un second espace extérieur de 8m2. Les chambres disposent d'un quadruple vitrage, assurant un confort acoustique optimal. Une salle de bains, une buanderie avec wc ainsi qu'un second wc séparé complètent ce bien parfaitement pensé. Une cave est incluse, et un box fermé peut être acquis en supplément. L'appartement, rénové par un architecte d'intérieur, se distingue par des volumes généreux sans perte d'espace, une circulation fluide et de nombreux rangements pensés sur mesure. Situé au troisième étage mais bénéficiant d'un dégagement tel qu'on a l'impression d'être au cinquième, il domine la Butte dans un environnement arboré et paisible. L'exposition plein ouest de la terrasse et du balcon permet de profiter de superbes fins de journée, dans le calme et la sérénité. La proximité immédiate des écoles les plus prisées du quartier en fait un bien particulièrement adapté à la vie de famille. À proximité immédiate des transports : métro Lamarck Caulaincourt à 360 m, Blanche à 530 m, La Fourche à 610 m. Plusieurs lignes de bus (80, 95, 40) desservent également le quartier. Un cadre de vie privilégié, entre confort moderne et atmosphère apaisante, dans l'un des secteurs les plus recherchés de la capitale
100 m²
13 250 €
7 m²
43 m²
5
3
1
1
2
3 sur 6
442 € / mois
1975
Ouest
1 (7 m²)
Oui
Oui
1
Oui
Oui
1
Oui
Consommations énergétiques
Logement économe
179
Logement énergivore (kWhEP/m2/an)
Émissions de gaz à effet de serre
Faible émission de GES
55
Forte émission de GES(kgeqCO2/m2/an)
Contact RUIZ
Contacter gratuitement à l'aide du formulaire ci-dessous.