Honoraires à la charge de l'acquéreur (Prix hors honoraires : 220000 euros).
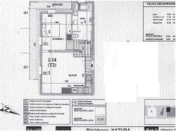
MONTPELLIER- PORT MARIANNE-Dans une résidence récente 'NATURA ' , appartement de type T2 de de 41.20 m2 situé au 4eme étages sur 5 étages avec ascenseur comprenant un séjour avec cuisine aménagée donnant sur une terrasse de 10.30m2 , d'une chambre avec placard, d'une salle de bains avec baignoire et wc. Ainsi qu'un Garage - Arrêt tram Mondial 98 à proximité. Bien soumis au statut juridique de la copropriété. 34 lots Charges annuelles de copropriété (Montant moyen annuel quote-part du budget prévisionnel vendeur) 2620EUR Pour tous renseignements complementaires ou visite veuillez contacter : Jessica ANDRIEUX 07.81.72.37.94 - Agence AMJ IMMO
41.2 m²
5 583 €
2
1
4.55 %
218 € / mois
2009
Oui
Consommations énergétiques
Logement économe
190
Logement énergivore (kWhEP/m2/an)
Émissions de gaz à effet de serre
Faible émission de GES
5
Forte émission de GES(kgeqCO2/m2/an)
Contact Amj Immo
Contacter gratuitement à l'aide du formulaire ci-dessous.