Mourillon Bureaux récents d'environ 317m2 en R+1, avec place
Toulon 83000
0
DESCRIPTION : Exclusivité- 6 Places de parking en dépose minute et 2 places handicapes
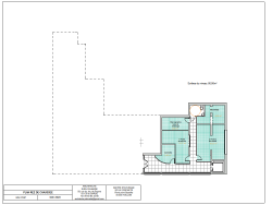
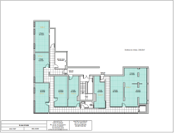
Situé en pied d'immeuble, entre le Mourillon et le Port de Toulon, magnifiques bureaux récents d'environ 300m2 en R+1, norme PMR. Ces locaux ont une superficie de 80m2 environ en RDC et 237m2 à l'étage, avant cloisonnement, avec ascenseur PRIVATIF. Plusieurs entrées sont possibles, par l'extérieur, côté rue et par l'immeuble, au 1er étage. Un rideau métallique électrique ferme le côté rue.
PRESTATIONS ET EQUIPEMENTS:
-Bureaux en pied d'immeuble très lumineux -Bureaux entièrement rénovés il y a 3 ans - Plusieurs sanitaires dont certains PMR -Coin cuisine équipé -Ascenseur privatif norme PMR -Climatisation dans tous les espaces -Proche du centre-ville du Mourillon, et à quelques minutes à pied du port -Plusieurs Parkings publics autour et 6 parkings en dépose minute réservé au local -Nombreux parkings gratuits proches -Proche des accès autoroutiers
CONDITIONS FINANCIERES :
-Loyer : 4200EUR/ mois payable par trimestre (le loyer n'est pas assujetti à TVA) -Taxe Foncière : 7900EUR -Charges de copropriété : 1200EUR / trimestre -Honoraires d'agence : 15%HT du loyer annuel
www.eval-conseils.com
300 m²
9072 %
400 € / mois
Oui
Oui
Oui
Contact TORNE
Contacter gratuitement à l'aide du formulaire ci-dessous.