NANCY / RIVES DE MEURTHE : BEL APPARTEMENT T2 MEUBLÉ
Nancy 54000
0
Les charges de location sont prévisionnelles mensuelles avec régularisation annuelle.
La part des honoraires pour la réalisation de létat des lieux de ce bien est de 117.51 euros.
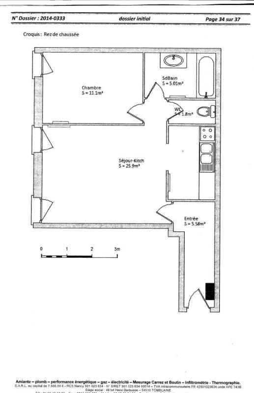
Dans le secteur Rives de Meurthe, proche du cinéma Kinépolis, bel appartement meublé T2 duplex (51 m2 au sol / 39 m2 Boutin) ; Cet appartement est complétement équipé et meublé, prêt à être habité, avec des prestations de qualité ; Ce joli 2 pièces duplex se compose d'un séjour avec baie vitrée, d'une cuisine équipée américaine, d'une salle d'eau avec WC et d'une chambre au 1er étage ; Possibilité d'utiliser le jardin partagé de la copropriété ; Vous accéderez au centre ville de Nancy en quelques mn à pied ou avec la ligne T1 ; Tous commerces de proximité sur place et supermarché à 5 mn ; Le loyer est de 650 EUR + 40 EUR de provisions sur charges mensuelles avec régularisation annuelle ; Libre de suite
Duplex
39.17 m²
22 m²
2
1
1
1
430.87 %
22/09/2025
40 € / mois
Oui
2008
Ouest
Nord
Consommations énergétiques
Logement économe
279
Logement énergivore (kWhEP/m2/an)
Émissions de gaz à effet de serre
Faible émission de GES
8
Forte émission de GES(kgeqCO2/m2/an)
Contact SERVICE LOCATION
Contacter gratuitement à l'aide du formulaire ci-dessous.