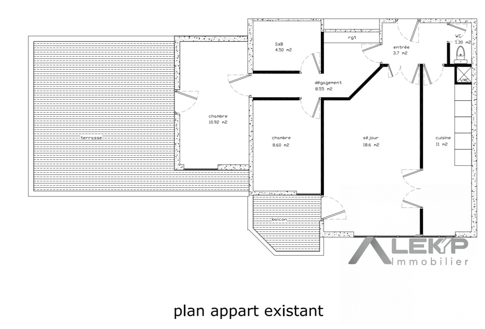
CFB vous propose, cet appartement de type 3 pièces (64m2) en dernier étage avec large balcon. Résidence proche toutes commodités et du quartier des Beregères (Puteaux) Il se compose d'une netrée, d'un séjour avec cuisine américaine aménagée. Un dégagement, deux chambres, salle de baisn et wc indépendant. Pour votre confort et le prtaique, une cave et 2 parkings en sous-sol complètent ce bien. Idéal première acquisition. Résidence récente, fermée et sécurisée;
Honoraires à la charge du vendeur. Dans une copropriété de 91 lots. Quote-part moyenne du budget prévisionnel 2 248 /an. Aucune procédure n'est en cours. Classe énergie D, Classe climat D Montant estimé des dépenses annuelles d'énergie pour un usage standard : entre 880.00 et 1240.00 sur les années 2021, 2022 et 2023 (abonnements compris). Les informations sur les risques auxquels ce bien est exposé sont disponibles sur le site Géorisques : georisques.gouv.fr.