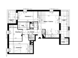
Nantes - Entre Erdre et La Loire - quartier Rond Point de Paris - Appartement 4 pièces 81.67m² Sud Est - 4ème étage - ascenseur - loggias 16.92m² - stationnement sécurisé. Idéalement situé entre la Loire et l'Erdre, dans un quartier dynamique et authentique, cet appartement bénéficie d'un cadre de vie exceptionnel alliant verdure, commodités et accessibilité. A quelques pas, profitez de nombreux restaurants, services, écoles, piscine et espaces verts, ainsi que d'un accès rapide au centre-ville grâce au tramway, bus, chronobus ou encore à vélo. Nichée au 4? étage d'une résidence à l'architecture soignée avec ascenseur, cette belle adresse dévoile un appartement traversant de 81,67 m² exposé sud. Son agencement fonctionnel comprend une entrée avec placard, une pièce de vie lumineuse avec cuisine ouverte, s'ouvrant sur une loggia de 11,46 m² avec cellier. L'espace nuit propose trois chambres, dont deux avec placard et une avec loggia privative de 5,46 m², une salle d'eau, une salle de bains et des toilettes indépendantes. Un stationnement sécurisé en sous-sol complète ce bien, idéal pour conjuguer confort, modernité et douceur de vivre. Prix promoteur - frais de notaire réduits - Les informations sur les risques auxquels ce bien est exposé sont disponibles sur le site Géorisques : www.georisques.gouv.fr. Photos non contractuelles - Suggestions d'aménagements Copropriété de 39 lots - dont 39 lots habitation. (Pas de procédure en cours). Charges annuelles : 1166 euros.