NANTES - Quartier Monselet - Appartement 4 pièces de 101.79m² Sud Ouest- 1er étage- terrasse de 49.92m² - ascenseur -stationnements
Nantes 44000
0
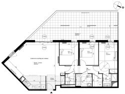
NANTES - Quartier Monselet - Appartement 4 pièces de de 101.79m² Sud Ouest- 1er étage- terrasse de 49.92m² - ascenseur -stationnements en sous-sol sécurisé Idéalement situé dans le quartier résidentiel et prisé de Monselet, cet appartement vous place à proximité immédiate du centre-ville. A seulement 8 minutes à vélo de la Place Graslin, avec ses théâtres, commerces, bars et restaurants, et à quelques pas des transports en commun, cet emplacement vous offre un équilibre parfait entre dynamisme urbain et quiétude. Dans une résidence élégante à l'architecture contemporaine, cet appartement de 101.79 m², orienté Sud-Ouest et situé au 1er étage avec ascenseur, propose des espaces généreux et lumineux. Il se compose d'un vaste séjour avec salon et cuisine ouverte, ouvrant directement sur une spacieuse terrasse de 49.92m² pour profiter de l'extérieur. Un dégagement dessert trois chambres, dont une suite parentale avec salle d'eau privative et accès direct à la terrasse, une salle de bains, un WC indépendant et des espaces de rangement. Ce bien est complété par deux stationnements sécurisés en sous-sol, assurant un stationnement pratique et sécurisé. Avantages : Prix promoteur -Frais de notaire réduits Pour plus d'informations sur les risques éventuels associés à ce bien, consultez le site Géorisques : www.georisques.gouv.fr. Photos non contractuelles - Suggestions d'aménagements Copropriété de 94 lots - dont 94 lots habitation. (Pas de procédure en cours). Charges annuelles : 1483 euros.