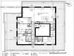
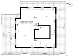
NANTES - TRIANGLE D'OR - Quartier Monselet - Appartement 5 pièces ? Plateau nu à aménager - 4ème étage- terrasse de 158.34m² - ascenseur - boxs en sous-sol sécurisés Ce lot est proposé en plateau nu, offrant une totale liberté d'aménagement selon vos envies (proposition d'aménagement disponible sur le plan joint). Idéalement situé au coeur du Triangle d'Or nantais, dans le secteur recherché des Hauts-Pavés ? Saint-Félix, et plus précisément dans le quartier prisé de Monselet, cet appartement bénéficie d'un emplacement privilégié à proximité immédiate du centre-ville. La place Graslin (théâtre, commerces, bars et restaurants) est accessible en 8 minutes à vélo, tandis que les transports en commun sont à quelques minutes à pied. Au sein d'une résidence élégante et raffinée, cet appartement 5 pièces de 138,80 m² est situé au 4? étage avec ascenseur. Il offre un potentiel d'aménagement remarquable comprenant : une entrée avec dégagement et placard, un vaste séjour-salon avec cuisine ouverte, un accès direct à une exceptionnelle terrasse de 158,34 m², un cellier ou arrière-cuisine, trois chambres, dont une suite parentale avec dressing et salle d'eau privative avec WC, des espaces de rangement intégrés, un bureau ou quatrième chambre avec accès terrasse, une salle de bains, un WC indépendant. Deux box sécurisés en sous-sol complètent ce bien rare. Prix promoteur ? Frais de notaire réduits Bien idéal pour une résidence principale haut de gamme ou un investissement patrimonial de qualité à Nantes. Les informations sur les risques auxquels ce bien est exposé sont disponibles sur le site Géorisques : www.georisques.gouv.fr. Photos non contractuelles - Suggestions d'aménagements Copropriété de 94 lots - dont 94 lots habitation. Charges annuelles : 2016 euros.