Honoraires à la charge de l'acquéreur (Prix hors honoraires : 0 euros).
Les charges de location sont prévisionnelles mensuelles avec régularisation annuelle.
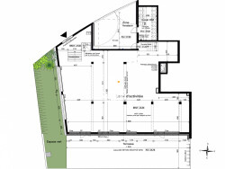
A LOUER LOCAL COMMERCIAL NANTES QUARTIER CHANTRERIE Emplacement à fort potentiel au coeur d'un quartier de 70 hectars L'environnement se compose d'habitations, de nombreuses entreprises et d'écoles supérieures - Ce local est destiné à une activité de RESTAURATION - En angle avec une surface de 275 m² environ + terrasse 107 m² - Brut de béton fluide en attente huisserie posée - Conduit d'extraction en attente, bac à graisse posé - Parking et transports à proximité. - Bail commercial 3/6/9 - Loyer annuel 49 500 HT/HC - Dépot de garantie 3 mois de loyer - Honoraires de commercialisation 25 % HT du loyer annuel HT/HC à la charge du preneur - Frais de rédaction de bail notarié et d'état des lieux à la charge du preneur en sus des honoraires Pour plus d'informations contactez-nous au 02 55 07 86 35
Honoraires de 12 375 HT à la charge du locataire. Dépôt de garantie 12 375 . Non soumis au DPE. Les informations sur les risques auxquels ce bien est exposé sont disponibles sur le site Géorisques : georisques.gouv.fr. . LOCAUX-BUREAUX-COMMERCES 02 55 07 86 35
275 m²
12375 %
2023
Contact Sonia BERNOVILLE
Contacter gratuitement à l'aide du formulaire ci-dessous.