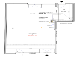
A vendre local commercial d'une surface de 80 m2 environ Dans le Quatrième Quartier le plus peuplé de NANTES : DOULON-BOTTIERE. Situé directement sur la Route de Sainte-Luce à NANTES, il bénéficie d'une belle visibilité sur un axe passant. Desservi par le réseau de transport NAOLIB avec le tramway Ligne 1 et le CHRONOBUS C7 La destination du local : Activités commerciales, services, pas de restauration Le local est vendu brut de béton réseaux et fluides en attente, huisseries posées. La cellule possède deux accès, un en façade et un par les parties communes de l'immeuble. Conditions de vente : Prix de vente net vendeur 300 000 EUR Honoraires de commercialisation 6 % HT du prix de vente net vendeur en sus à la charge de l'acquéreur. Pour toutes informations complémentaires, contactez-nous! LOCAUX-BUREAUX-COMMERCES 02 55 07 86 35
79.9 m²
3 755 €
2024
Contact FOULON Nicolas
Contacter gratuitement à l'aide du formulaire ci-dessous.