Neuf - Studio 26 m2 - place de parking- FAVERGES Centre
Faverges 74210
0
Honoraires à la charge de l'acquéreur (Prix hors honoraires : 152640 euros).
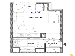
Pensée en partenariat avec les Architectes des bâtiments de France, cette magnifique résidence au centre de Faverges mêle style contemporain et codes architecturaux de cette petite ville au coeur des Alpes. Avec un panorama exceptionnel sur les montagnes environnantes, les espaces naturels ont été tout particulièrement privilégiés afin de préserver la biodiversité locale et un certain art de vivre: Prairie, jardins privatifs, voie sans voiture. Son emplacement de choix, à proximité des écoles, commerces, départs de randonnées et de la piste cyclable pour rejoindre le lac d'Annecy notamment, s'adresse à tous. Composée de deux bâtiments, avec ascenseurs, cette résidence propose des appartements allant du studio au T4. Ce studio se compose de la sorte : - Entrée avec placards : 3.52 m2 - Séjour/cuisine : 18.07 m2 - Salle de douche : 4.90 m2 Une place de parking privative
26 m²
6 115 €
1
4.17 %
31/12/2028
Oui
Contact PEAK IMMOBILIER DOUSSARD
Contacter gratuitement à l'aide du formulaire ci-dessous.