EMPLACEMENT EXCEPTIONNEL À NÎMES - JARDIN DE LA FONTAINE
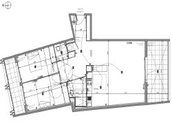
T3 de 92 m2 traversant avec double terrasse-loggia de 21,61 m2
Situé dans une résidence sécurisée, l'appartement, équipé de la climatisation réversible, dispose de 2 chambres orientées nord-ouest desservant une terrasse-loggia commune donnant sur une rue très peu passante donc très calme. Chaque chambre dispose d'un dressing intégré. Une salle de bain ainsi que des toilettes séparés sont distribués par le couloir amenant aux chambres.
L'appartement se veut moderne avec des espaces ouverts venant renforcer la sensation d'espace. la cuisine est donc prévue pour être ouverte sur le salon-séjour et dispose d'une grande surface appréciable de 42,15 m2 Toute la largeur de cette pièce à vivre donne sur la seconde terrasse-loggia orientée Sud-Est du côté cour intérieure de la résidence, venant accentuer la sensation d'espace de cette pièce.
L'appartement comporte 2 parkings en sous-sol de la résidence. Véritable plus dans ce quartier en vogue où il est difficile de se garer.
A proximité de tous commerces, écoles, centre-ville, et parc du jardin de la Fontaine. L'emplacement y est exceptionnel, il vous permettra de vivre dans un cadre verdoyant que sont les allées Jean-Jaurès et de profiter de son célèbre marché du vendredi.
Bien desservi par les transports en communs, la gare de Nîmes TGV se situe à 10min vous permettant de relier Paris en 3h.
NB: Il vous est possible de revoir la disposition de l'appartement directement avec le maître d'oeuvre et d'en modifier les prestations selon vos désirs et votre budget.
Honoraires à la charge du vendeur. Dans une copropriété de 25 lots. Aucune procédure n'est en cours. DPE vierge. Les informations sur les risques auxquels ce bien est exposé sont disponibles sur le site Géorisques : georisques.gouv.fr.
92 m²
5 326 €
42 m²
3
2
1
1 (séparé)
1 sur 3
2022
Ouest
Nord
Oui
Oui
2
Oui (25 lots)
Contact Imonah
Contacter gratuitement à l'aide du formulaire ci-dessous.