NEUF (frais de notaire réduits 2.5%) - ROANNE - PROXIMITE CE
Roanne 42300
0
Unique à Roanne - A l'abri des regards
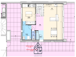
Bénéficiant de 120.5 m2 habitables sur 2 niveaux, ce magnifique duplex bénéficie d'une magnifique luminosité par tout temps. Vous pouvez profiter de vos grandes terrasses aménagées ( 199.7 m2 au total )avec Jacuzzi et végétalisation. Entièrement sécurisée, il se situe à 5 minutes du centre ville de Roanne. Il comprend : AU RDC:
Une spacieuse pièce de vie ( 34 m2 ) donnant sur d'immenses baies vitrées et la grande terrasse. Une cuisine ouverte sur la pièce de vie, équipée sur mesure ( 12 m2) donnant sur la terrasse ombragée, offrant à la fois fonctionnalité et design. Une buanderie / arrière cuisine Un WC
A l'étage :
3 chambres dont une suite parentale de 22 m2 (avec sa salle d'eau) offrant une vue dégagée sur la côte roannaise sans vis à vis 1 salle d'eau
L'ensemble de la villa est équipée :
De nombreux rangements faits sur mesure dans toute la maison pour optimiser l'espace. Un sol chauffant rafrichissant, une climatisation réversible et une pompe à chaleur garantissent un confort optimal toute l'année. Une cheminée pour des moments de convivialité en hiver. Double vitrage dernière génération avec BSO et volets roulants RT 2012 Aucun travaux à prévoir. Possibilité d'acheter un garage de 50 m2 en supplément.
Mandat numéro 20201364 Honoraires charge vendeur 480 000 EUR FAI Carte PRO 4201 2020 000 000 001 État des risques et pollutions Les informations sur les risques auxquels ce bien est exposé sont disponibles sur le site Géorisques: www.georisques.gouv.fr
N'hésitez pas à nous contacter pour plus de renseignements ou pour organiser une visite. Virginie GILLES 07 72 44 64 28
Selon l'article L.561.5 du Code Monétaire et Financier, pour l'organisation de la visite, la présentation d'une pièce d'identité vous sera demandée.
120.5 m²
3 983 €
34 m²
4
3
2
2
2024
Ouest
Oui
1
Oui
Oui
Consommations énergétiques
Logement économe
56
Logement énergivore (kWhEP/m2/an)
Émissions de gaz à effet de serre
Faible émission de GES
3
Forte émission de GES(kgeqCO2/m2/an)
Contact GILLES
Contacter gratuitement à l'aide du formulaire ci-dessous.