Neuilly-sur-Seine Ile de la Jatte - Appartement d'Exceptio
Neuilly-sur-Seine 92200
0
Honoraires à la charge du vendeur.
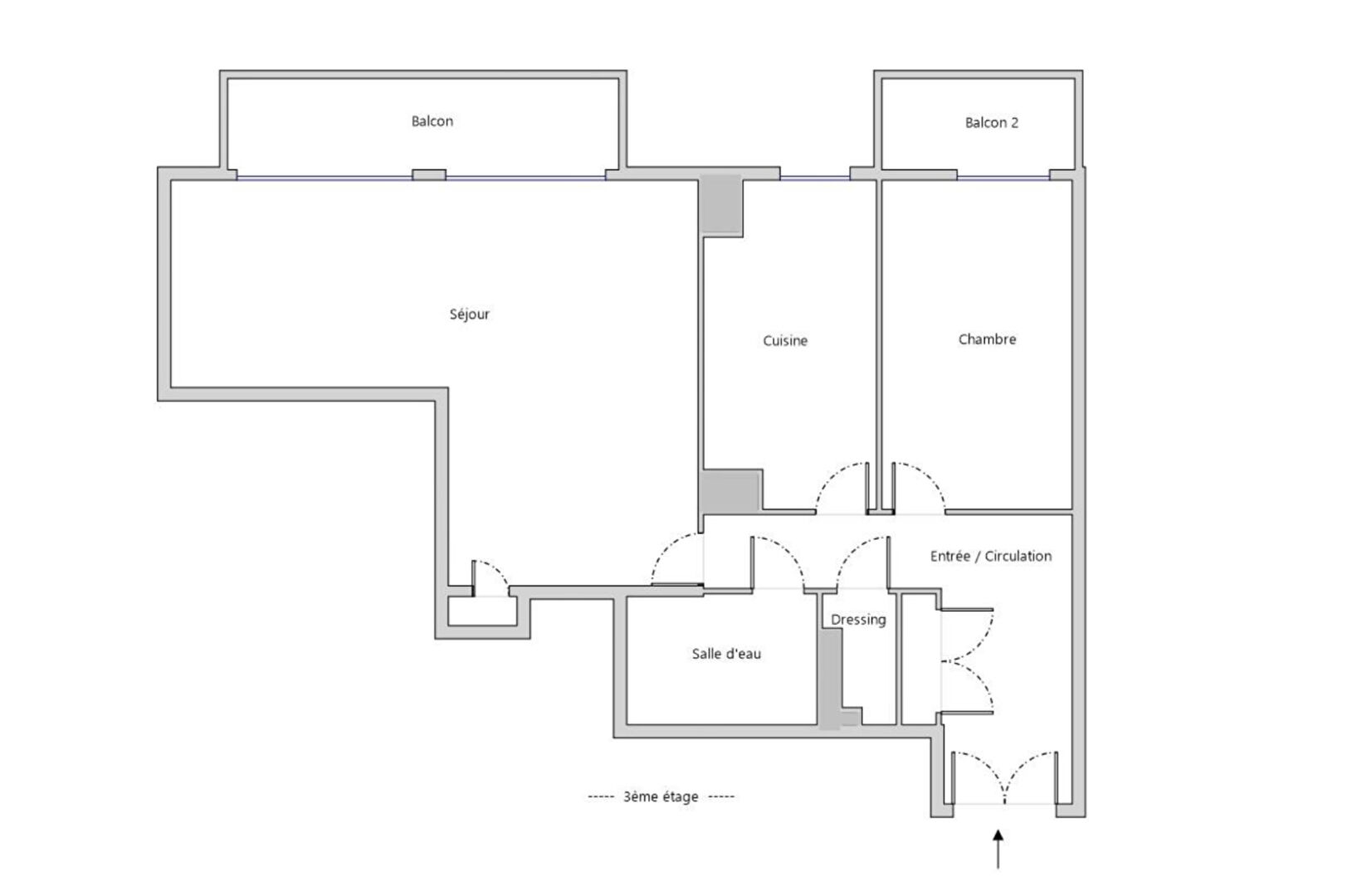
Situé à proximité immédiate de l'Île de la Jatte, cet appartement de 65,15 m2 bénéficie d'un cadre verdoyant et particulièrement paisible, tout en offrant une excellente connexion avec Paris. Installé au premier étage d'un immeuble en briques de cinq étages avec ascenseur, il séduit par son ambiance sereine et son très bon état d'entretien.
L'appartement se compose de deux chambres, dont l'une dispose d'une mezzanine permettant de créer deux espaces de couchage distincts. Il comprend également des toilettes séparées, une salle d'eau récemment rénovée, ainsi qu'un séjour lumineux avec cuisine ouverte, pensée pour conjuguer fonctionnalité et convivialité.
Le confort est assuré par une isolation thermique et acoustique performante. Les fenêtres anti-bruit garantissent un calme appréciable, tandis que le parquet en chêne massif apporte une touche élégante et chaleureuse à l'ensemble.
Ce bien s'adapte parfaitement aux besoins d'un couple avec enfant, d'un actif souhaitant aménager un espace de télétravail ou d'un investisseur recherchant un bien attractif dans un secteur prisé. Le quartier, à dominante résidentielle, offre un cadre de vie agréable avec des commerces à proximité, des équipements sportifs, de nombreux espaces verts, un parc dédié aux chiens et un accès rapide vers Paris. L'immeuble dispose d'un local à vélos et le stationnement est facile aux alentours.
Deux visuels réalisés à l'aide de l'intelligence artificielle sont proposés afin de permettre une projection du salon et de la cuisine dans un aménagement plus contemporain.
Pour planifier une visite, entrez rapidement en contact avec Paris Vendôme Luxury - International Realty.
65 m²
8 615 €
3
2
1
1
1884
Est
Oui
Oui
Consommations énergétiques
Logement économe
180
Logement énergivore (kWhEP/m2/an)
Émissions de gaz à effet de serre
Faible émission de GES
31
Forte émission de GES(kgeqCO2/m2/an)
Contact GOEPFERT Nathan
Contacter gratuitement à l'aide du formulaire ci-dessous.